DeviceNet Network Scanner Application Manual

DeviceNet Network Scanner DVPDNET-SL
DVP-PLC Application Manual
24
(4) Program explanations:
In the beginning of the program, clear the response message editing area and request message
editing area to 0.
When M0 = On, DVPDNET-SL will send out request message, reading Class 1>>Instance 1>>
Attribute 1 of the target equipment (node address: 02). If the communication of explicit message is
successful, the slave will return with a response message.
When M0 = On, DVPDNET-SL will only send out request message once. If you would like it to
sendout request message again, you will have to change ReqID.
When the reading is successful, the message responded from the target equipment will be stored
in D6000 ~ D6003.
5. Application example (II)
Target M1 = On, set 0x99>>Instance 1>>Attribute 2 of IFD9502 to “0004Hex”.
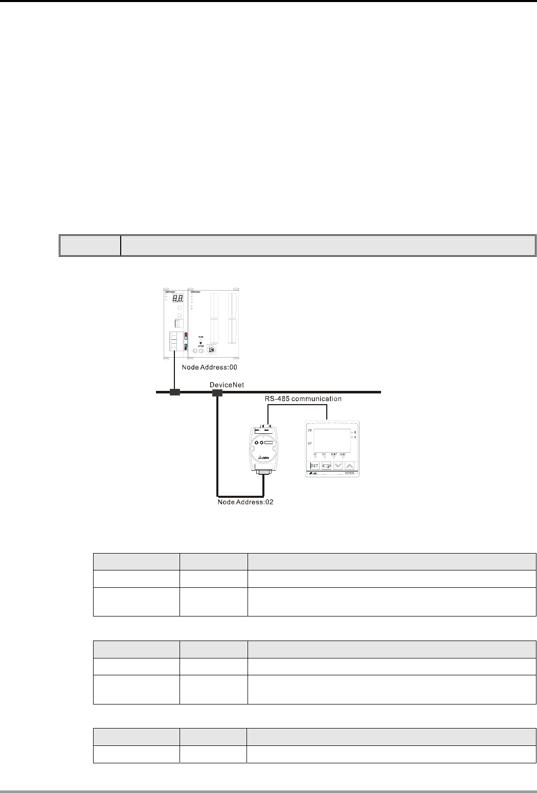
(1) The connection
(2) Compulsory settings and explanations on devices
Compulsory settings in DVPDNET-SL
Parameter Set value Explanation
Node address 00 Set the node address of DVPDNET-SL to “00”.
Baud rate 500kbps
Set the communication speed of DVPDNET-SL and bus to
“500kbps”.
Compulsory settings in IFD9502
Parameter Set value Explanation
Node address 02 Set the node address of IFD9502 to “02”.
Baud rate 500kbps
Set the communication speed of IFD9502 and bus to
“500kbps”.
Compulsory settings in VFD-B
Parameter Set value Explanation
02-00 04 The main frequency is operated on RS-485 interface.










