Dimensions Guide

COMPLIES WITH:
•
ASME A112.18.1 / CSA B125.1
•
ASME A112.18.6
Indicates compliance to
ICC/ANSI A117.1
•
Verified compliant with .25% weighted
average Pb content regulations.
KITCHEN
FAUCETS
■ Collins™
Series
■ Single Handle Deck Mount
■ 1 and 2 Hole Sink Applications
■ DIAMOND Seal
®
Technology
■ Integrated Supply Tubes
Submitted Model No.: _______________________________________________
Specific Features: __________________________________________________
STANDARD SPECIFICATIONS:
• 9 3/16" (233 mm) long spout swings 180°.
• Lever handle shall return to neutral position
when valve is turned off.
• Control mechanism shall be the diamond coated
ceramic cartridge.
• Red/blue graphics on handle button to indicate
hot/cold temperature.
• Model 441 series with spray attachment has
anti-siphon device as integral part of faucet.
• Vegetable sprayer hose installation on model
441 series.
• 3/8" O.D. straight, staggered pex supply
tubes - 35" (889 mm) and 36" (914 mm) long.
• Standard 3/8" (10 mm) compression gasket fittings
• Max. 1.80 gpm @ 60 psi, 6.8 L/min @ 414 kPa.
141-▲DST
DSP-K-141-DST Rev. F
Delta reserves the right (1) to make changes in specifications and materials, and (2) to change or discontinue
models, both without notice or obligation. Dimensions are for reference only. See current full-line price book or
www.deltafaucet.com for finish options and product availability.
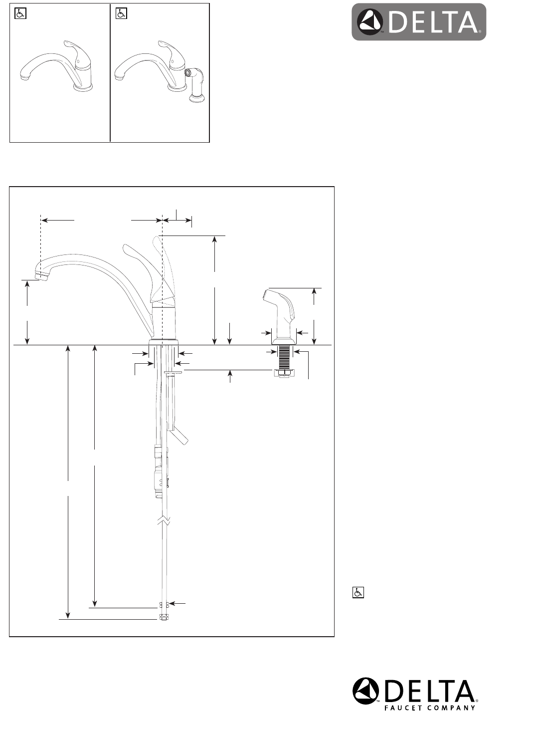
2 9/32"
(58 mm)
35"
(889 mm)
36"
(914 mm)
9 3/16"
(233 mm)
360° swing spout
4 7/8"
(124 mm)
141-DST / 441-DST
8 21/64"
(212 mm)
4 3/4"
(121 mm)
2"
(51 mm)
Dia.
2 1/2"
(64 mm)
Max. Deck
Thickness
441-▲DST
3/8" Compression Fitting
55 E. 111th Street, Indianapolis, Indiana 46280
350 South Edgeware Road, St. Thomas, ON N5P 4L1
© 2015 Masco Corporation of Indiana
Min. 2 1/2" (64 mm)
Clearance to Back Splash
1 5/16" - 1 1/2"
(33-38 mm)
Hole Size
▲ Designate Proper Finish Suffix
1 5/16" - 1 1/2"
(33-38 mm)
Hole Size
WARRANTY
•
Lifetime limited warranty on parts (other than
electronic parts and batteries) and finishes:
or, for commercial users, for 5 years from
date of purchase.
•
5 year limited warranty on electronic parts
(other than batteries); or, for commercial
users, for 1 year from the date of purchase.
No warranty is provided on batteries.