Technical Specifications

COMPLIES WITH:
•
ASME A112.18.1 / CSA B125.1
•
ASME A112.18.6
Indicates compliance to
ICC/ANSI A117.1
•
Verified compliant with .25% weighted
average Pb content regulations.
KITCHEN
FAUCETS
■ Kine
TM
Series
■ DIAMOND Seal
®
Technology
■ MagnaTite
®
Magnetic Docking
Submitted Model No.: _______________________________________________
Specific Features: __________________________________________________
Delta reserves the right (1) to make changes in specifications and materials, and (2) to change or discontinue
models, both without notice or obligation. Dimensions are for reference only. See current full-line price book or
www.deltafaucet.com for finish options and product availability.
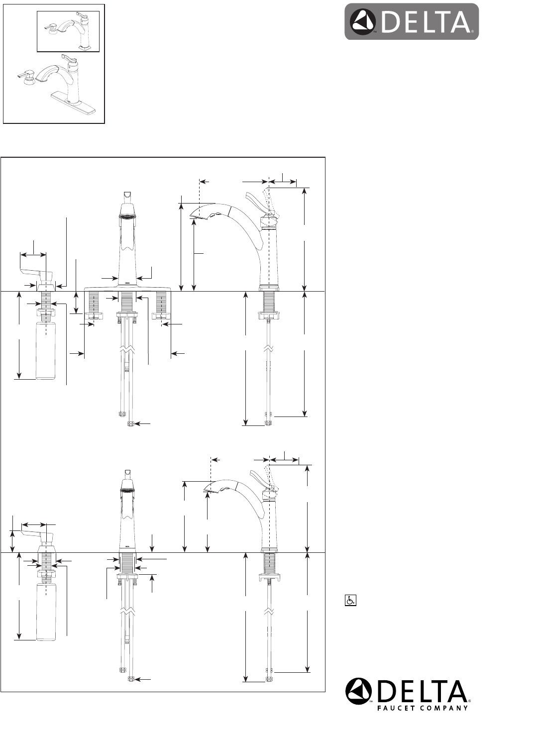
8"
(203 mm)
Centers
35"
(889 mm)
35"
(889 mm)
36"
(914 mm)
36"
(914 mm)
8 5/8"
(218 mm)
8 5/8"
(218 mm)
10 11/32"
(263 mm)
10 11/32"
(263 mm)
12 13/16"
(325 mm)
12 13/16"
(325 mm)
2 1/4"
(57 mm)
3/8" Compression Fitting
3/8" Compression Fitting
10 5/8"
(269 mm)
9"
(228 mm)
9"
(228 mm)
10 1/2"
(267 mm)
2 1/2"
(64 mm)
Max. Deck
Thickness
1 1/16"
(27 mm)
3 1/16"
(78 mm)
2 5/8"
(66 mm)
3 1/16"
(78 mm)
2 3/16"
(55 mm)
55 E. 111th Street, Indianapolis, Indiana 46280
350 South Edgeware Road, St. Thomas, ON N5P 4L1
© 2015 Masco Corporation of Indiana
4x 1 5/16"
to 1 1/2"
(33 mm to
38 mm)
Hole Size
Min. 2 1/2" (64 mm)
Clearance To Back Splash
Min. 2 1/2" (64 mm)
Clearance To Back Splash
▲ Designate Proper Finish Suffix
WARRANTY
•
Lifetime limited warranty on parts (other than
electronic parts and batteries) and finishes:
or, for commercial users, for 5 years from
date of purchase.
•
5 year limited warranty on electronic parts
(other than batteries); or, for commercial
users, for 1 year from the date of purchase.
No warranty is provided on batteries.
16967-▲SD-DST
DSP-K-16967-SD-DST Rev. A
2 1/4"
(57 mm)
Dia.
2x 1 5/16"
to 1 1/2"
(33 mm to
38 mm)
Hole Size
2 1/2"
(64 mm)
Max. Deck
Thickness
10 5/8"
(269 mm)
2 3/16"
(55 mm)
1 1/16"
(27 mm)
STANDARD SPECIFICATIONS:
• Maximum 1.8 gpm flow rate @ 60 PSI.
• Single handle kitchen faucets for exposed
mounting on 1, 2, 3 and 4 hole sinks.
• Control mechanism shall be the diamond coated
ceramic cartridge.
• 3/8" O.D. straight, staggered pex supply
tubes - 35" (889 mm) and 36" (914 mm) long.
• Spout is connected to valve body with a 53''
(1346 mm) long hose.
• 10 5/8" (269 mm) high, 8 5/8" (218 mm) long
spout nestled in metal hub assembly, swings 120
°
.
• Red/blue graphics on handle button to indicate
hot/cold temperature.
• Pull-out spout operates in an aerated or spray
mode via an easy push button.
• Soap dispenser bottle holds up to 8 oz.
• Centermount or 8" (203 mm) centers with optional
10 1/2 (267 mm) long escutcheon included.
• Lever handle shall return to neutral position
when valve is turned off.
• Touch-Clean
®
sprayhead.
• Standard 3/8" (10 mm) compression gasket fittings.
• Integral double check valves in spout.