Dimensions Guide

LAVATORY
FAUCETS
Addison
®
Bath Collection
Two Handle Deck Mount
3 Hole Sink Applications
4" Centerset
Diamond Seal
®
Technology
Submitted Model No.: _______________________________________________
Specific Features: __________________________________________________
STANDARD SPECIFICATIONS:
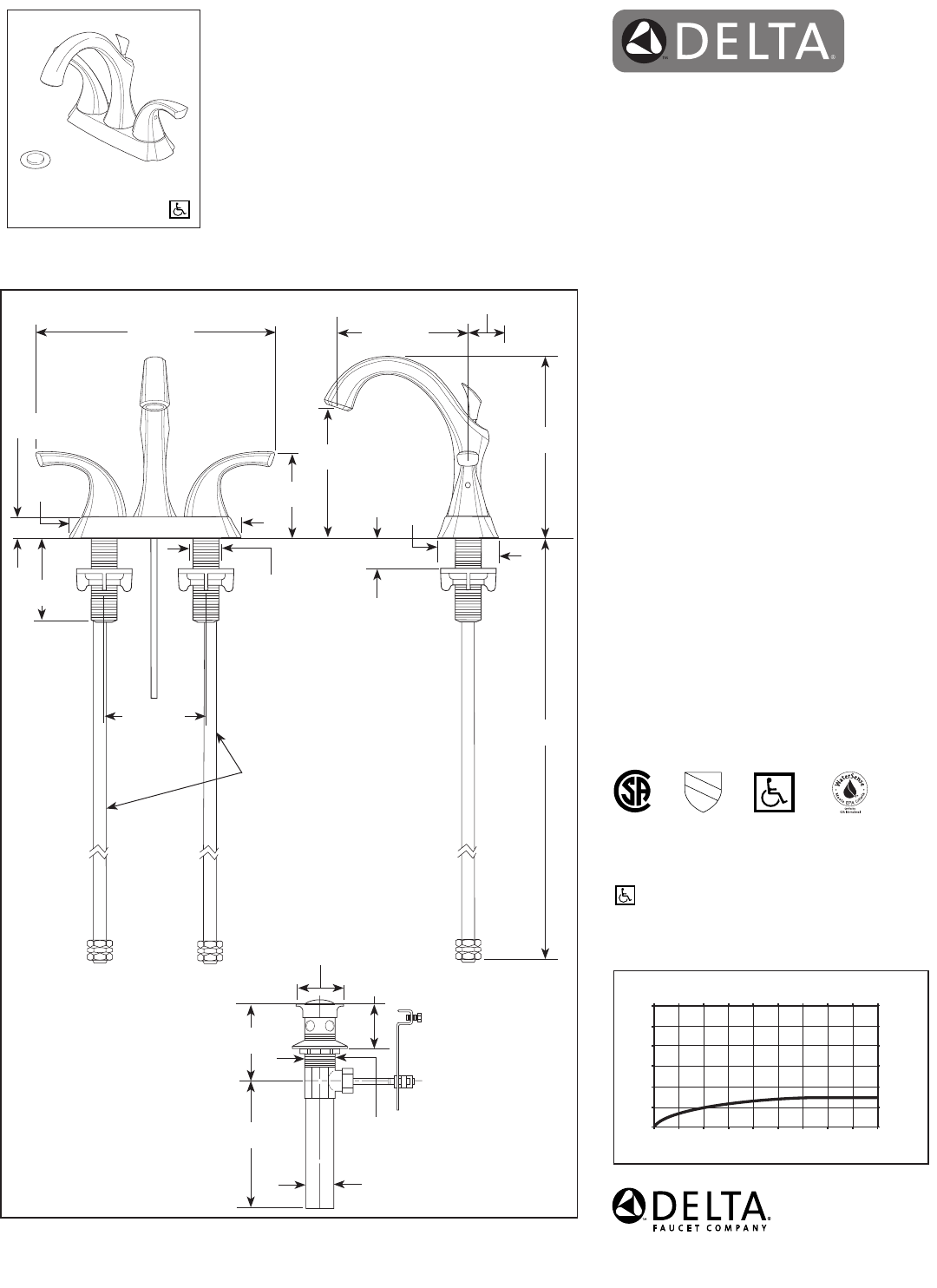
4" (102 mm) centerset.
5" (127 mm) long, 7" (178 mm)
high rigid spout.
1/4 turn handle stops.
Lever handle. Control mechanism is a diamond
embedded ceramic disc cartridge.
Hot and cold stems are interchangeable.
3/8" O.D. straight pex supply tubes -
32" (813 mm) long.
Models have metal drain with pop-up type fitting
with plated flange and stopper.
Maximum 1.5 gpm flowrate @ 60 PSI.
Maximum mounting deck thickness is
2 1/4" (64 mm).
0
1
2
3
4
5
0102030405060708090
Pressure (P SI)
Flow (U.S. Gallons P er Min ute)
6
069 138 207 276 345 414 483 552 621
0
3.8
7.6
11.4
15.1
18.9
22.7
Pressure (k Pa)
Flow (Liters Per Mi nute)
2592-MPU-DST
Delta reserves the right (1) to make changes in specifications and materials, and (2) to change or discontinue
models, both without notice or obligation. Dimensions are for reference only. See current full-line price book or
www.specselect.com for finish options and product availability.
DSP-L-2592-MPU-DST Rev. A
®
®
U
P
C
COMPLIES WITH:
• ASME A112.18.1 / CSA B125.1
• ASME A112.18.2 / CSA B125.2
Indicates compliance to
ICC/ANSI A117.1
EPA WaterSense
®
Verified compliant with .25% weighted average
Pb content regulations.
3 3/8"
(86 mm)
1 3/8"
(35 mm) Dia.
1 1/4"
(32 mm) Dia.
2 1/8"
(54 mm)
Dia.
1 5/8"
(41 mm)
to
2 3/8"
(60 mm)
4 5/8"
(117 mm)
4 7/8"
(124 mm)
2 1/4" (57 mm)
Max. Deck
Thickness
2 1/2"
(64 mm)
7"
(178 mm)
5"
(127 mm)
55 E. 111th Street, Indianapolis, Indiana 46280
350 South Edgeware Road, St. Thomas, ON N5P 4L1
© 2012 Masco Corporation of Indiana
Min. 1 3/16" (30 mm)
Clearance To Back Splash
2x 1" to 1 1/2"
(25 mm to 38 mm)
Hole Size
Designate Proper Finish Suffix
9 1/2"
(241 mm)
6 11/16"
(170 mm)
4" Centers
(102 mm)
2 11/16"
(68 mm)
PEX Supply Tubes
32"
(813 mm)
3 1/4"
(83 mm)
WARRANTY
Lifetime limited warranty on parts (other than
electronic parts and batteries) and finishes:
or, for commercial users, for 5 years from
date of purchase.
5 year limited warranty on electronic parts
(other than batteries); or, for commercial
users, for 1 year from the date of purchase.
No warranty is provided on batteries.
7/8"
(22 mm)

Summary of content (1 pages)