Dimensions Guide

DSP-L-3538-MPU-DST Rev. C
LAVATORY FAUCETS
Lahara
®
Bath Collection
Two Handle Widespread Deck Mount
Submitted Model No.: _______________________________________________
Specific Features: __________________________________________________
STANDARD SPECIFICATIONS:
• Max. 1.20 gpm @ 60 psi, 4.54 L/min @ 414 kPa
Three hole mount
• Solid brass fabricated end valve
• 1/4 turn stops
• Diamond coated ceramic cartridge
• 3/8" O.D. straight PEX supply tubes
• Models with suffix "MPU" have metal drain with
pop-up type fitting with plated flange and stopper
Delta reserves the right (1) to make changes in specifications and materials, and (2) to change or discontinue
models, both without notice or obligation. Dimensions are for reference only. See current full-line price book or
www.deltafaucet.com for finish options and product availability.
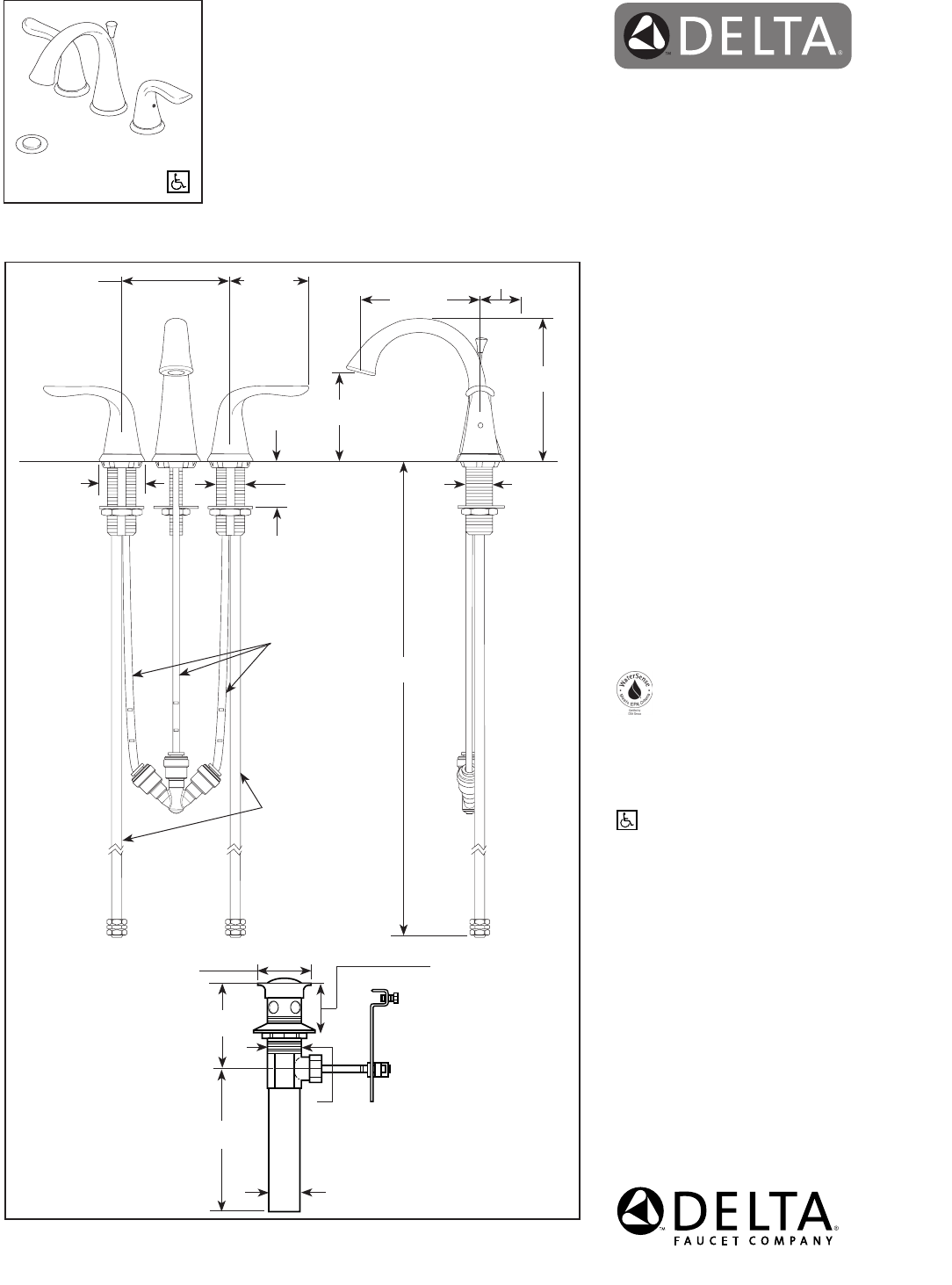
3538-MPU-DST
4" to 16"
(102 mm to
406 mm)
Centers
PEX Supply Tubes
3 3/8"
(86 mm)
2 1/4"
(57 mm)
Max. Deck
Thickness
5"
(127 mm)
5 7/8"
(149 mm)
3 5/8"
(92 mm)
39"
(991 mm)
3x 1 15/16"
(49 mm)
Designate proper finish suffix
55 E. 111th Street, Indianapolis, Indiana 46280
350 South Edgeware Road, St. Thomas, ON N5P 4L1
© 2016 Masco Corporation of Indiana
2 1/8"
(54 mm) Dia.
1 1/4"
(32 mm)
Dia.
3 3/8"
(86 mm)
4 5/8"
(118 mm)
1 3/8"
(35 mm)
Dia.
1 5/8"
(42 mm)
to
2 3/8"
(61 mm)
1 1/16"
(27 mm)
3x 1 1/16" to 1 1/2"
(27 mm to 38 mm)
Hole Size
PEX Outlet Tubes
Min. 2 1/2" (64 mm)
Clearance To Back Splash
COMPLETE VALVE COMPLIES WITH:
ASME A112.18.1 / CSA B125.1
ASME A112.18.2 / CSA B125.2
ASME A112.18.6
Indicates compliance to
ICC/ANSI A117.1
EPA WaterSense
®
Verified compliant with .25% weighted average
Pb content regulations.
WARRANTY
Lifetime limited warranty on parts (other than
electronic parts and batteries) and finishes:
or, for commercial users, for 5 years from
date of purchase.
5 year limited warranty on electronic parts
(other than batteries); or, for commercial
users, for 1 year from the date of purchase.
No warranty is provided on batteries.
FEATURES:
• DIAMOND Seal
®
Technology

Summary of content (1 pages)