Specification

lavatory
FaUCEtS
■ Two Handle
■ Widespread
■ Three Hole Sink Applications
■ 6-16" (152 mm-406 mm) Centers
Submitted Model No.: _______________________________________________
Specific Features: __________________________________________________
STANDARD SPECIFICATIONS:
• Two handle lavatory faucets for concealed mounting
on three hole sinks.
• Solid brass fabricated end valves and spout body.
• Widespread 6"-16" (152 mm-406 mm) centers.
• 5 1/4 (134 mm) long rigid spout.
• Vandal resistant metal wrist blade handles. Red/blue
colored graphics indicate hot/cold temperature.
• Control mechanism shall be of the rotating cylinder
type with stainless steel plate and 1/4 turn stops.
Replaceable non-metallic seats operate in stainless
steel lined sockets.
• Hot and cold stems are interchangeable.
• 1.5 gpm (5.7 L/min) vandal resistant aerator.
• 3/8" O.D. copper supply tube inlets with
1/2"-14 NPSM adapters.
• 1/4 turn handle stop.
DSP-L-3549LF-WFHDF Rev. B
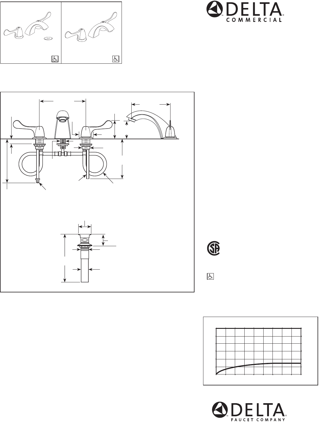
1 1/8"
(29 mm)
Max. Deck
Thickness
1 5/8"
(42 mm)
to
2 3/8"
(61 mm)
0
1
2
3
4
5
0102030405060708090
Pressure (PSI)
Flow (U.S. Gallons Per Minute)
6
069 138 207 276 345 414 483 552 621
0
3.8
7.6
11.4
15.1
18.9
22.7
Pressure (kPa)
Flow (Liters Per Minute)
®
Delta reserves the right (1) to make changes in specifications and materials, and (2) to change or discontinue
models, both without notice or obligation. Dimensions are for reference only. See current full-line price book or
www.deltafaucet.com for finish options and product availability.
6"-16"
(152 mm-
406 mm)
centers
2 3/8"
(61 mm)
3 1/8"
(79 mm)
55 E. 111th Street, Indianapolis, Indiana 46280
350 South Edgeware Road, St. Thomas, ON N5P 4L1
© 2013 Masco Corporation of Indiana
1 3/8"
(35 mm)
Dia.
3549LF-WFHDF
1/2"-14 NPSM
3549LF-WFLGHDF
7 5/16"
(186 mm)
5 1/4"
(134 mm)
2 1/8"
(54 mm)
Dia.
1 1/4"
(32 mm)
Dia.
8"
(203 mm)
COmPlIES wITh:
• ASME A112.18.1 / CSA B125.1
Indicates compliance to
ICC/ANSI A117.1
• Verified compliant with .25% weighted
average Pb content regulations.
7 5/8"
(194 mm)
3/8" O.D.
Copper
Tubing
Flexible Hose Connection
1 1/8"
(29 mm)
Dia.
1"
(25 mm)
Dia.
2"
(51 mm)
Dia.