Specification Sheet

DSP-L-35955-MPU-DST Rev. B
LAVATORY
FAUCETS
■ Victorian
®
Collection
■ Two Handle Widespread Deck Mount
Submitted Model No.: _______________________________________________
Specific Features: __________________________________________________
STANDARD SPECIFICATIONS:
• Maximum 1.5 gpm @ 60 PSI, 5.7 L/Min @ 414 kPa
• Three hole mount
• Diamond coated ceramic cartridge
• 3/8" O.D. straight , staggered PEX supply tubes
• Solid brass fabricated end valve
• 1/4 turn stops
• Hot and cold stems are interchangeable
•
Metal drain with pop-up type fitting with plated
flange and stopper
Delta reserves the right (1) to make changes in specifications and materials, and (2) to change or discontinue
models, both without notice or obligation. Dimensions are for reference only. See current full-line price book or
www.deltafaucet.com for finish options and product availability.
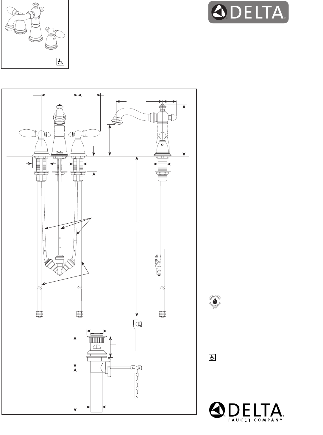
3555-▲ MPU-DST
35955-▲-DST
4" to 16"
(102 mm to
406 mm)
Centers
PEX Supply Tubes
2 9/16"
(65 mm)
2 1/4"
(57 mm)
Max. Deck
Thickness
5 1/8"
(130 mm)
5 15/16"
(151 mm)
3 3/4"
(95 mm)
39"
(991 mm)
3x 1 15/16"
(49 mm)
▲ Designate proper finish suffix
55 E. 111th Street, Indianapolis, Indiana 46280
350 South Edgeware Road, St. Thomas, ON N5P 4L1
© 2015 Masco Corporation of Indiana
2 1/8"
(54 mm) Dia.
1 1/4"
(32 mm)
Dia.
3 1/2"
(89 mm)
4 7/8"
(124 mm)
1 5/8"
(42 mm)
to
2 3/8"
(61 mm)
COMPLETE VALVE COMPLIES WITH:
•
ASME A112.18.1 / CSA B125.1
•
ASME A112.18.2 / CSA B125.2
•
ASME A112.18.6
Indicates compliance to
ICC/ANSI A117.1
•
EPA WaterSense
®
•
Verified compliant with .25% weighted average
Pb content regulations.
1 1/16"
(27 mm)
3x 1 1/16" to 1 1/2"
(27 mm to 38 mm)
Hole Size
PEX Outlet Tubes
1 1/2"
(38 mm)
FEATURES:
• DIAMOND Seal
®
Technology
WARRANTY
•
Lifetime limited warranty on parts (other than
electronic parts and batteries) and finishes:
or, for commercial users, for 5 years from
date of purchase.
•
5 year limited warranty on electronic parts
(other than batteries); or, for commercial
users, for 1 year from the date of purchase.
No warranty is provided on batteries.