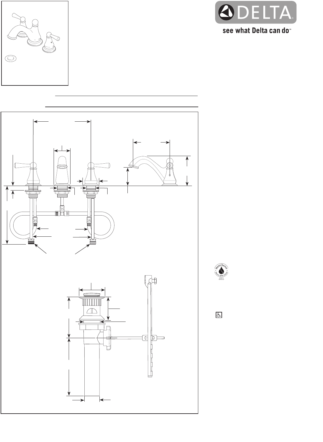
Dimensions Guide

BATHROOM FAUCET
■ Haywood
TM
Series
■ Two Handle Widespread Deck Mount
STANDARD SPECIFICATIONS:
• Max. flow rate 1.2 gpm @ 60 psi, 4.5 L/min @ 414 kPa
• Three hole mount
• Solid brass fabricated end valve and spout bodies
• 1/4 turn handle stops
• Control mechanism is a rotating cylinder
with stainless steel plate and 90° rotation,
with replaceable non-metallic seats
operating in stainless steel lined sockets.
• 3/8” O.D. copper supply tubes
• Standard mounting deck thickness can be
extended 1" with RP10612
DSP-L-35999LF Rev. D
6" to 16"
(152 mm to
406 mm)
Centers
1 1/4" (32 mm)
Max. Deck
Thickness
2 1/2"
(64 mm)
5 1/16"
(129 mm)
Flexible Hose
Connection
3/8" O.D.
Copper Tubing
1/2"-14 NPSM
1"
(25 mm)
Dia.
1 1/8"
(29 mm)
Dia.
2 1/4"
(57 mm)
Dia.
7"
(176 mm)
4 1/8"
(105 mm)
35999LF ▲
1 5/8"
(42 mm)
to
2 3/8"
(61 mm)
2 1/8"
(54 mm)
Dia.
3 1/2"
(89 mm)
1 3/8"
(35 mm)
Dia.
4 7/8"
(124 mm)
1 1/4" (32 mm) Dia.
Delta reserves the right (1) to make changes in specifications and materials, and (2) to change or discontinue
models, both without notice or obligation. Dimensions are for reference only. See current full-line price book or
www.deltafaucet.com for finish options and product availability.
2 1/4"
(57 mm)
Dia.
▲ Designate Proper Finish Suffix
Submitted Model No.:
Specific Features:
FEATURES:
•
Quick-Snap
®
Installation
Delta Faucet Company
55 E. 111th Street, Indianapolis, IN 46280
350 South Edgeware Road, St. Thomas, ON N5P 4L1
© 2020 Delta Faucet Company
WARRANTY
•
Parts and Finish - Lifetime limited warranty; or for
commercial purchasers, 10 years for multi-family
residential (apartments and condominiums) and
5 years for all other commercial uses, in each case
from the date of purchase.
•
Electronic Parts and Batteries (if applicable) - 5
years from the date of purchase; or for commercial
purchasers, 1 year from the date of purchase. No
warranty is provided on batteries.
COMPLIES WITH:
• ASME A112.18.1 / CSA B125.1
• ASME A112.18.2/ CSA B125.2
Indicates compliance to
ICC/ANSI A117.1 - Valve control only
• EPA WaterSense
®
• Verified compliant with 0.25% weighted average
Pb content regulations