Specification

COMPLIES WITH:
•
ASME A112.18.1 / CSA B125.1
•
ASME A112.18.6
Indicates compliance to
ICC/ANSI A117.1
•
Verified compliant with .25% weighted
average Pb content regulations.
KITCHEN
FAUCETS
■ Single Handle Deck Mount
■ 3 and 4 Hole Sink Applications
■ DIAMOND Seal
®
Technology
■ Integrated Supply Tubes
Submitted Model No.: _______________________________________________
Specific Features: __________________________________________________
STANDARD SPECIFICATIONS:
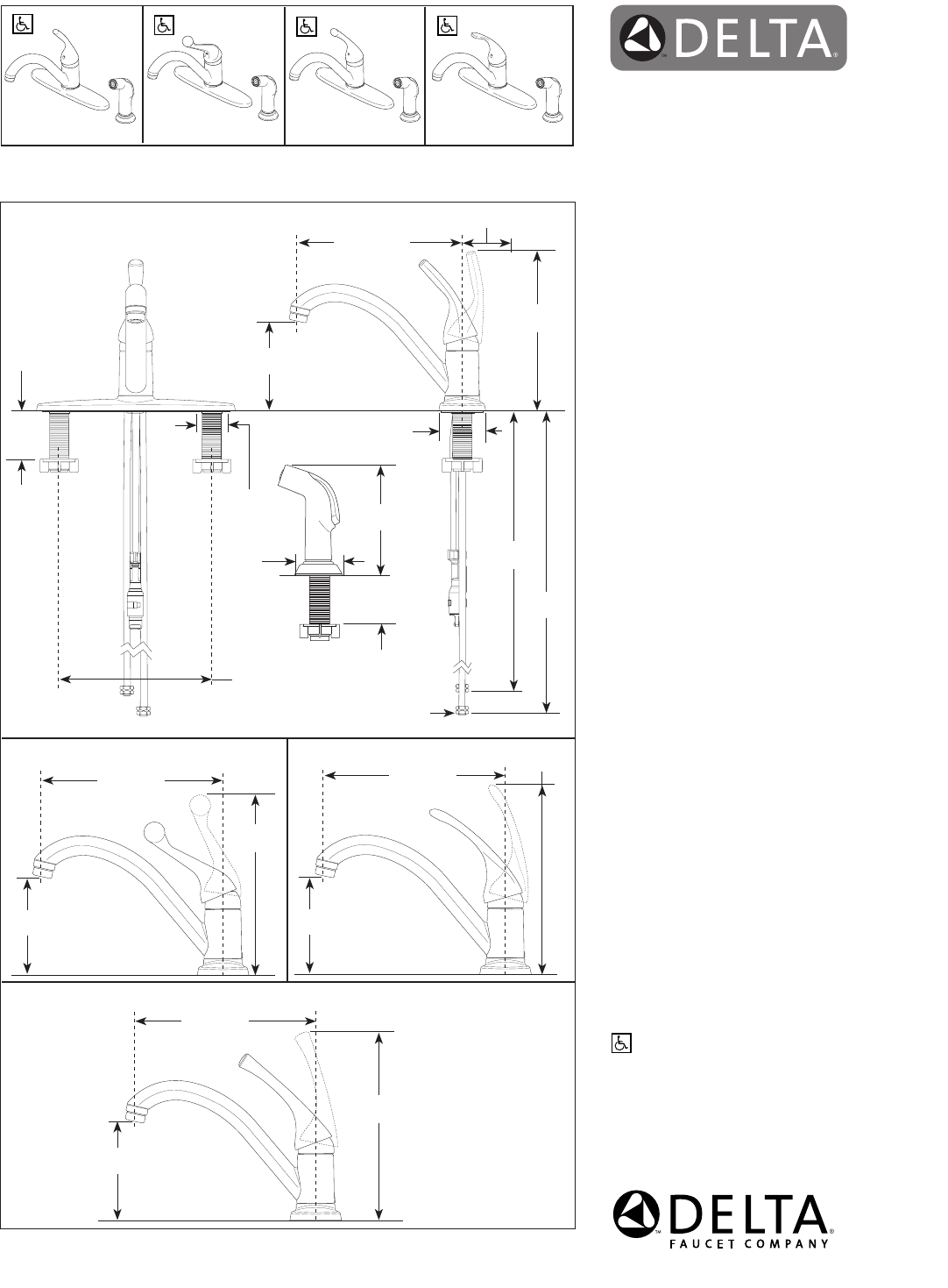
• 8 11/16" (221 mm) long spout swings 180°.
• Lever handle shall return to neutral position when
faucet is turned off.
• Control mechanism shall be the diamond coated
ceramic cartridge.
• Model 400 series with spray attachment have
anti-siphon device as integral part of faucet.
• Vegetable sprayer hose with matching finish
sprayhead - 45" (1143mm) long hose.
• 3/8" O.D. straight, staggered pex supply tubes-
35" (889 mm) and 36"
(914 mm)
long.
• Standard 3/8" (10 mm) compression gasket fittings.
• Includes cartridge limit switch to allow a maximum
hot water mix of 50%.
• Maximum 1.80 gpm @ 60 psi, 6.8 L/min @ 414 kPa
400-DST-A▲
400-BH-DST
400-DST▲
2 1/2"
(64 mm)
35"
(889 mm)
36"
(914 mm)
8 11/16"
(221 mm)
4 3/4"
(121 mm)
400-BH-DST
400-DST
8 3/8"
(213 mm)
8" (203 mm )
centers
3/8" Compression Fitting
4 3/4"
(121 mm)
2"
(51 mm)
Dia.
2 1/2"
(64 mm)
Max. Deck
Thickness
Delta reserves the right (1) to make changes in specifications and materials, and (2) to change or
discontinue models, both without notice or obligation. Dimensions are for reference only. See current
full-line price book or www.deltafaucet.com for finish options and product availability.
DSP-K-400-DST Rev. F
2 1/2"
(64 mm)
Max. Deck
Thickness
400-DST-L▲
8 11/16"
(221 mm)
4 3/4"
(121 mm)
8 9/16"
(218 mm)
8 11/16"
(221 mm)
4 3/4"
(121 mm)
9 1/16"
(230 mm)
400-DST-A
400-DST-L
8 11/16"
(221 mm)
4 3/4"
(121 mm)
9 2/16"
(232 mm)
55 E. 111th Street, Indianapolis, Indiana 46280
350 South Edgeware Road, St. Thomas, ON N5P 4L1
© 2014 Masco Corporation of Indiana
4x 1 5/16"
to 1 1/2"
(33 mm to
38 mm)
Hole Size
Min. 2 1/2" (64 mm)
Clearance To Back Splash
▲ Designate Proper Finish Suffix
WARRANTY
•
Lifetime limited warranty on parts (other than
electronic parts and batteries) and finishes:
or, for commercial users, for 5 years from
date of purchase.
•
5 year limited warranty on electronic parts
(other than batteries); or, for commercial
users, for 1 year from the date of purchase.
No warranty is provided on batteries.

