Specification

LAVATORY
FAUCETS
■ Compel
®
Collection
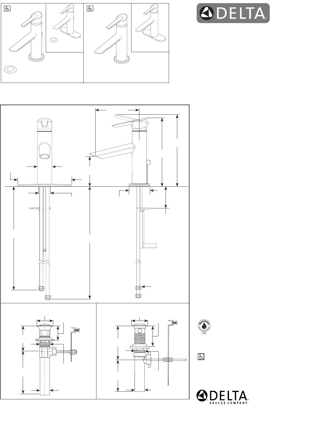
■ Single Handle Deck Mount
■ 1 or 3 Hole Sink Mount
(Optional 6" Escutcheon Included)
Submitted Model No.: _______________________________________________
Specific Features: __________________________________________________
STANDARD SPECIFICATIONS:
• Lever handle. Control mechanism is the diamond
embedded ceramic disc cartridge.
• 1 or 3 hole installation.
• 5" (127 mm) long reach on spout.
• Red/blue markings on handle for
hot/cold identification.
• Control handle shall return to neutral position
when valve is turned off.
• Maximum 1.5 gpm @ 60 psi, 5.7 L/min @ 414 kPa.
• GPM indicates max. 1.0 gpm @ 60 PSI, 3.8 L/min @ 414 kPa.
• HGM indicates max. 0.5 gpm @ 60 PSI, 1.9 L/min @ 414 kPa.
• 3/8" O.D. straight, staggered pex supply tubes 29"
(737 mm) and 33" (838 mm) long.
• Models with suffix "MPU"have metal drain with
pop-up type fitting with plated flange and stopper.
• Models with suffix "LPU" are less pop-up.
• Models with suffix "TP" have 50/50 pop-up type
fitting with plated flange and stopper.
561-▲MPU-DST*
561-▲TP-DST*
561-GPM-DST
561-HGM-DST
Delta reserves the right (1) to make changes in specifications and materials, and (2) to change or discontinue
models, both without notice or obligation. Dimensions are for reference only. See current full-line price book or
www.deltafaucet.com for finish options and product availability.
DSP-L-561-MPU-DST Rev. C
COMPLIES WITH:
• ASME A112.18.1 / CSA B125.1
• ASME A112.18.2 / CSA B125.2
Indicates compliance to
ICC/ANSI A117.1
•
EPA WaterSense
®
•
Verified compliant with .25% weighted average
Pb content regulations.
3 3/8"
(86 mm)
1 3/8"
(35 mm)
Dia.
1 1/4"
(32 mm)
Dia.
2 1/8"
(54 mm)
Dia.
1 5/8"
(41 mm)
to
2 3/8"
(60 mm)
4 5/8"
(117 mm)
1 5/8"
(42 mm)
Diameter
3 5/16"
(84 mm)
2 1/4"
(57 mm)
29"
(737 mm)
33"
(838 mm)
6"
(152 mm)
Optional
Escutcheon
2 1/2"
(64 mm)
Max. Deck
Thickness
Optional 6"
Escutcheon
7 1/2"
(191 mm)
8"
(203 mm)
5"
(127 mm)
561-▲LPU-DST*
4 3/8"
(111 mm)
1 3/8"
(35 mm)
Dia.
1 1/4"
(32 mm)
Dia.
2 1/8"
(54 mm)
Dia.
1 5/8"
(41 mm)
to
2 3/8"
(60 mm)
4"
(102 mm)
▲ Designate Proper Finish Suffix
3/8"
Compression
Fitting
MPU TP
WARRANTY
•
Lifetime limited warranty on parts (other than
electronic parts and batteries) and finishes:
or, for commercial users, for 5 years from
date of purchase.
•
5 year limited warranty on electronic parts
(other than batteries); or, for commercial
users, for 1 year from the date of purchase.
No warranty is provided on batteries.
Optional 6"
Escutcheon
1 1/4" to 1 1/2"
(32 mm to 38 mm)
Hole Size
*
55 E. 111th Street, Indianapolis, Indiana 46280
350 South Edgeware Road, St. Thomas, Ontario Canada N5P 4L1
© 2015 Masco Corporation of Indiana