Specifications

Delta reserves the right (1) to make changes in specications and materials, and (2) to change or discontinue
models, both without notice or obligation. Dimensions are for reference only. See current full-line price book or
www.deltafaucet.com for nish options and product availability.
DSP-L-581LF-PP Rev. C
LAVATORY FAUCET
Single Handle Deck Mount
STANDARD SPECIFICATIONS:
WARRANTY
COMPLIES WITH:
• ASME A112.18.1 / CSA B125.1
• ASME A112.18.2 / CSA B125.2
• EPA WaterSense
®
Indicates compliance to
ICC / ANSI A117.1
• Lifetime limited warranty on parts (other than
electronic parts and batteries) and inishes; or,
for commercial users, for 5 years from the date
of purchase.
• 5 year limited warranty on electronic parts (other
than batteries); or for commercial users, for 1 year
from the date of purchase. No warranty is provided
on batteries
•
Veri ied compliant with 0.25% weighted
average Pb content regulations
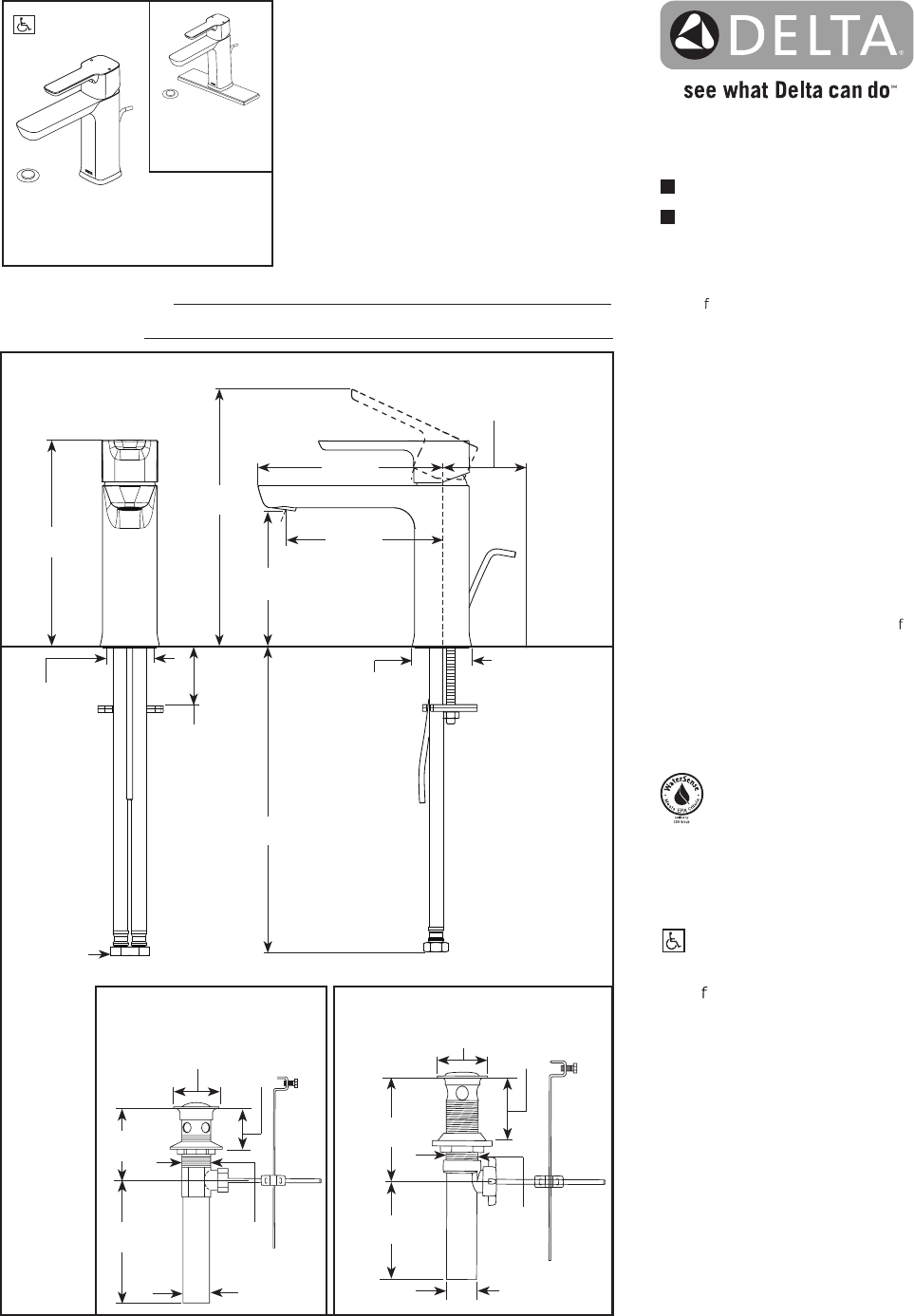
2 1/2"
(64 mm)
Max. Desk
Thickness
1 1/8"~1 1/2"
(29~38 mm)
Hole Size
Submitted Model No.:
Specific Features:
Modern series
1 13/16"
(46 mm)
Min. 2 1/2" (64 mm)
Clearance to Back Splash
Recommended
4 13/16"
(122 mm)
19"
(483 mm)
6 7/16"
(163 mm)
7 7/8"
(199 mm)
4 1/4"
(107 mm)
5 5/8"
(142 mm)
• Max low rate 1.2 gpm @ 60 psi, 4.5 L/min @ 414 kPa
• GPM models provide 1.0 gpm @ 60 psi,
3.8 L/min @ 414 kPa
• HGM models provide
0.5 gpm @ 60 psi,1.9 L/min @ 414 kPa
• One or three hole mount (Escutcheon optional, not included)
• Control mechanism is the ceramic disc cartridge
•
Red/blue indicator markings
• Solid brass body
• Lift rod hole plug sold separately (RP78360)
• 1/4
"
threaded stud mounting
• Models have 50/50 pop-up type fitting with plated
flange and stopper
• Models with suffix "MPU" have metal drain with pop-up type
fitting with plated flange and stopper
4 3/8"
(111 mm)
1 3/8"
(35 mm)
Dia.
1 1/4"
(32 mm)
Dia.
2 1/8"
(54 mm)
Dia.
1 5/8"
(41 mm)
to
2 3/8"
(60 mm)
4"
(102 mm)
RP38958p
RP28653p
50/50 Pop-up
Metal Pop-up Less Lift Rod
1 5/8"
(42 mm)
to
2 3/8"
(61 mm)
2 1/8"
(54 mm)
Dia.
3 3/8"
(86 mm)
1 3/8"
(35 mm)
Dia.
4 5/8"
(118 mm)
1 1/4"
(32 mm)
Dia.
p
Designate proper nish sufx
581LF-PP*
581LF-HGM-PP
581LF-GPM-PP*
581LF-MPU-PP*
Optional 6"
Escutcheon
RP76702
3/8"
(9 mm)
Compression
Fitting
*
Delta Faucet Company
55 E. 111th Street, Indianapolis, IN 46280
350 South Edgeware Road, St. Thomas, ON N5P 4L1
© 2017 Delta Faucet Company

