Specification Sheet

Electronic Faucet - 591T Series
4" Cast Lavatory
Delta reserves the right (1) to make changes in specifications and materials, and (2) to change or discontinue models, both without notice or obligation.
Dimensions are for reference only. See current full-line price book or www.specselect.com for finish options and product availability.
DSP–591T Rev. D
591T ELECTRONIC FAUCET OPTIONAL ACCESSORIES:
✔ TRANSFORMERS:
060704A 110 to 24VAC Class II 20VA (Up to 5 Electronic Valves)
060771A 110 to 24VAC Class II 40VA (Up to 10 Electronic Valves)
060772A 110 to 24VAC Class II 100VA (Up to 25 Electronic Valves)
✔
CORDS:
060690A 36" Cable Extension
Approvals:
•
CSA certified
•
Complies to ASME A112.18.1
•
ADA Compliant and meets Handicapped
Accessibility Standard ASME A117.1
of less than 5 lbs. handle operating force.
•
IAPMO listed
•
Control Box Option 6 Mechanical Mixing
Valve CSA certified
•
Control Box Option 8 Thermostatic Mixing
Valve CSA certified and meets ASSE 1016,
1017, 1070
(Contact Delta Representative for State and/or
Local Approvals.)
U.S. Patent # 6, 826, 455
OPERATION:
• Hands free (touchless) operation.
• Water flows when sensor is activated.
• Water flow stops upon de-activation of sensor.
•
Auto shut-off feature that is selectable
between 15 to 75 seconds.
Factory set to
45 seconds. Will reset once obstruction is
removed.
• Adjustable sensing distance 76 to 381mm
(3" to 15") factory set to 229mm (9") (
+
/– 1.0”)
• Low battery audible beep (for battery models
only). Will activate after faucet shuts off when
approximately 1500 cycles remain.
FLOWRATE vs PRESSURE
2.5
2
1.5
1
.5
00
0
1
2
3
4
5
6
7
8
9
10 20 30 40 50 60 70 80
Line Pressure (psig)
FLOW
(l/min.)
FLOW
(USGPM)
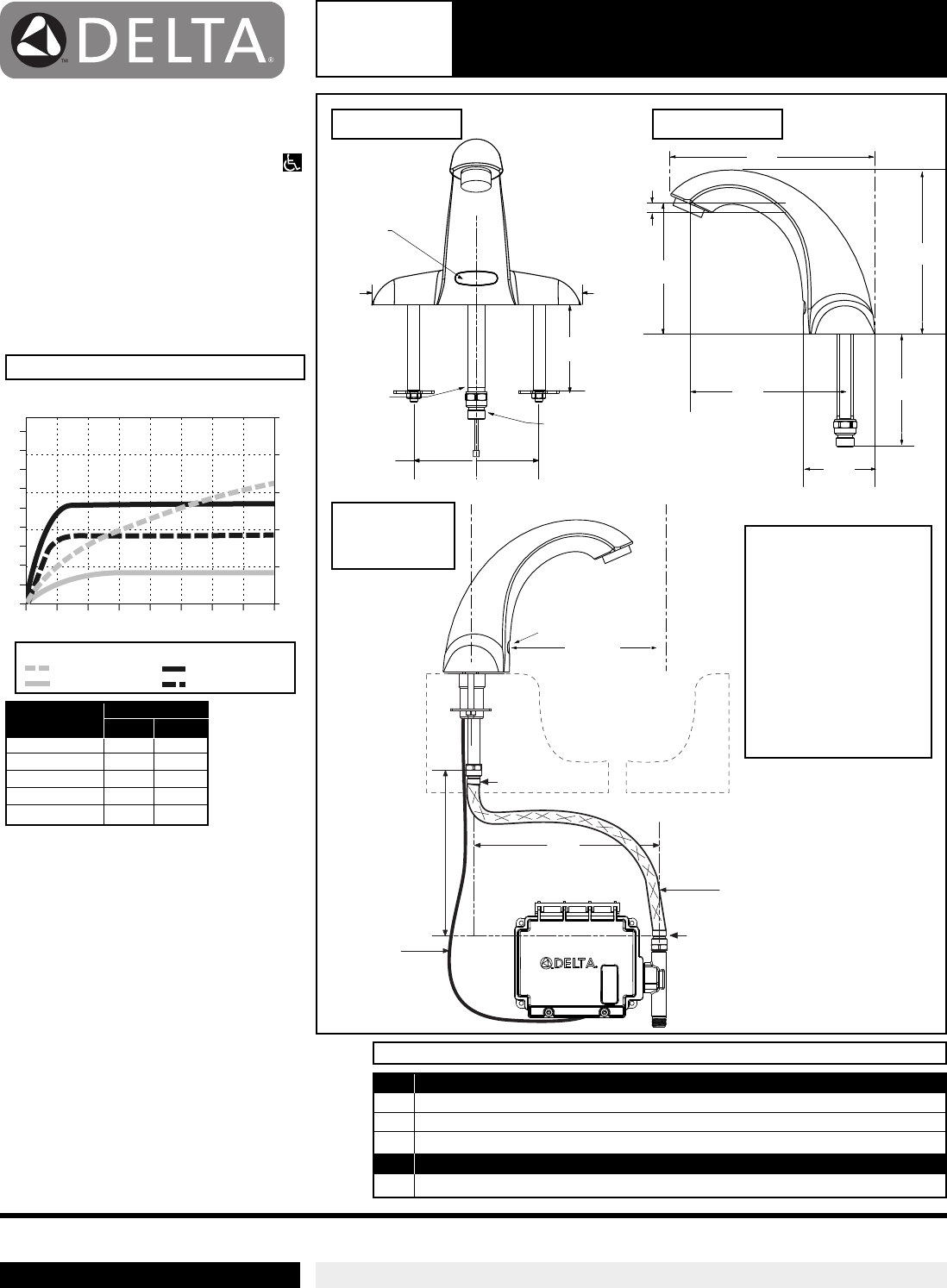
Spout Outlets
No. 3 & 4 Aerator
No. 2 Laminar Flow Outlet
No. 6 Flow Control Outlet
No. 5 Low Flow Outlet
Outlet Flowrates
Note: Measurements may vary ± 6mm (0.25'')
591T1250
Typical
Installation
92mm
(3.625")
58mm
(2.3")
127mm
(5.0")
107mm
(4.2")
165mm
(6.5")
135mm
(5.3")
D
Refer to www.specselect.com for individual models.
Product supplied as shown by solid lines. All items shown by dotted lines supplied by others.
CAST SPOUT “D”
OUTLET NO. mm in.
2 11 0.45
3 11 0.45
4 11 0.45
5 11 0.45
6 11 0.45
FRONT VIEW SIDE VIEW
NOTE: For optimum performance of this product, we
recommend a system pressure between 20 and 80 PSI
static. This product will operate up toa maximum of
125 PSI static per ANSI and CSA requirements.
However, we do not recommend pressures above
80 PSI. Thermal expansion or leaking pressure reducing
valves may require use of expansion tanks or relief
valves to ensure your system never exceeds its
maximum intended pressure setting.
3/8" Compression
Connection
Sensor
168mm
(6.25")
3 Holes
22.2mm
(0.875") Dia.
51mm (2") MAX.
Deck Thickness
102mm
(4.0")
178mm
(7.0")
MAX.
331mm
(13.0")
MAX.
3/8"
Compression
Connection
Sensor
Cord
508mm (20.0")
Stainless Steel Hose
3/8"
Compression
Connection
Sensing Zone
228mm (9.0")
Default
Sensor
TECK
®
COMMERCIAL
HYDRO POWER
™
■ Add suffix “-HP” to Product
Number for Hydro Power
™
.
See DSP-HP for detailed
specification. Available on
Battery Powered #0 Control Box
and #2, 3 or 4 outlets only.
HARDWIRE WITH
BATTERY BACKUP
■ Add suffix “-BB” to Product
Number. See DSP-BB for
detailed specification.