Specification Sheet

254mm
(10.0")
203mm
(8.0")
257mm
(10.13")
127mm
(5.0")
25mm
(1.0")
53mm
(2.07")
102mm
(4.0")
25mm
(1.0")
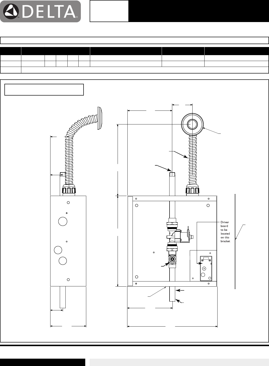
Tempered Water
(By Others)
Inlet: 1/2" Copper
Aluminum
Control Box
Screwdriver Stop
57mm
(2.25")
127mm
(5.0")
70mm (2.75")
Diameter
Outlet
3/8" M.I.P.
Flexible Sensor
Cord Conduit
(Supplied on Recessed
Mount Box)
305mm
(12.0")
Stainless
Steel
Cover
TEMPERED WATER - ASSEMBLED CONTROL BOX
591T SERIES
591T SERIES
✔
PRODUCT NO. FAUCET TYPE MOUNT TYPE COVER
*591T 0 2 1 Deckmount Cast Lavatory Hardwire Recessed Mount 305mm (12") Stainless Steel
*591T 1 2 1 Deckmount Cast Lavatory Battery Recessed Mount 305mm (12") Stainless Steel
*This product is supplied with Flexible Sensor Cord Conduit on Recessed Mount Installations.
Specification Drawing #2
Delta reserves the right (1) to make changes in specifications and materials, and (2) to change or discontinue models, both without notice or obligation.
Dimensions are for reference only. See current full-line price book or www.specselect.com for finish options and product availability.
DSP–591T Rev. D
Note: Measurements may vary ± 6mm (0.25'')
Battery Operated box shown.
Hardwire Version comes
complete with Watertight
Connector and Hardwire
Converter 24VAC to 6VDC.
Hardwire with Battery
Backup (-BB) comes
complete with Watertight
Connector, Hardwire
Converter 24VAC to
6VDC and 9V battery.
See DSP-BB.
Connection from box
to spout by others.
TECK
®
COMMERCIAL