Specification Sheet

Specification Drawing #3
Delta reserves the right (1) to make changes in specifications and materials, and (2) to change or discontinue models, both without notice or obligation.
Dimensions are for reference only. See current full-line price book or www.specselect.com for finish options and product availability.
DSP–591T Rev. D
Note: Measurements may vary ± 6mm (0.25'')
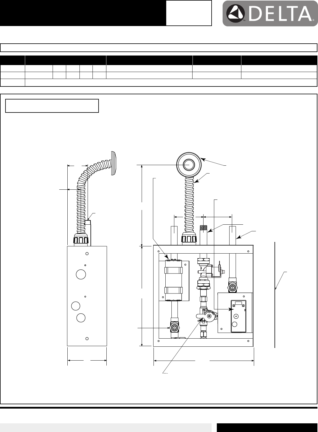
MECHANICAL MIXING VALVE ASSEMBLED CONTROL BOX
203mm
(8.0")
53mm
(2.07")
257mm
(10.13")
Outlet 3/8" M.I.P.
Outlet: 3/8" M.I.P.
70mm (2.75") Diameter
102mm
(4.0")
35mm
(1.38")
Driver board
to be located
on this bracket
Bracket
and
battery
holder not
required
for
hardwire
models
Flexible Sensor
Cord Conduit
(Supplied
on recessed
mount box)
254mm
(10.0")
74mm
(2.9")
74mm
(2.9")
Inlets
1/2" Copper
Mechanical Mixing Valve
with Checks and Thermostatic Limit Stop
Screwdriver
Stop
305mm
(12.0")
Stainless
Steel
Cover
591T SERIES
591T SERIES
✔
PRODUCT NO. FAUCET TYPE MOUNT TYPE COVER
*591T 0 2 6 Deckmount Handwash Hardwire Recessed Mount 305mm (12") Stainless Steel
*591T 1 2 6 Deckmount Handwash Battery Recessed Mount 305mm (12") Stainless Steel
*This product is supplied with Flexible Sensor Cord Conduit on Recessed Mount Installations.
Battery Operated box shown.
Hardwire Version comes
complete with Watertight
Connector and Hardwire
Converter 24VAC to 6VDC.
Hardwire with Battery
Backup (-BB) comes
complete with Watertight
Connector, Hardwire
Converter 24VAC to
6VDC and 9V battery.
See DSP-BB.
Connection from box
to spout by others.
TECK
®
COMMERCIAL