Use and Care Guide

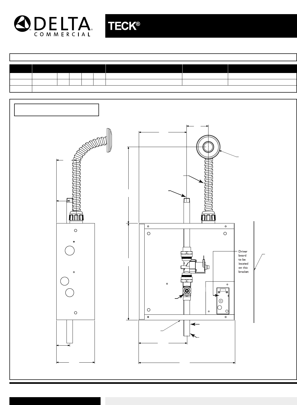
254mm
(10.0")
203mm
(8.0")
257mm
(10.13")
127mm
(5.0")
25mm
(1.0")
5
3mm
(
2.07")
102mm
(4.0")
25mm
(1.0")
Tempered Water
(By Others)
Inlet: 1/2" Copper
Aluminum
Control Box
Screwdriver Stop
S
57mm
(2.25")
127mm
(5.0")
70mm (2.75")
Diameter
A
Outlet
3/8" M.I.P.
Flexible Sensor
Cord Conduit
(Supplied on Recessed
Mount Box)
305mm
(12.0")
Stainless
Steel
Cover
TEMPERED WATER - ASSEMBLED CONTROL BOX
591T SERIES
591T SERIES
✔
PRODUCT NO. FAUCET TYPE MOUNT TYPE COVER
*591T 0 2 1 Deckmount Cast Lavatory Hardwire Recessed Mount 305mm (12") Stainless Steel
*591T 1 2 1 Deckmount Cast Lavatory Battery Recessed Mount 305mm (12") Stainless Steel
*
This product is supplied with Flexible Sensor Cord Conduit on Recessed Mount Installations.
Specification Drawing #2
Delta reserves the right (1) to make changes in specifications and materials, and (2) to change or discontinue models, both without notice or obligation.
Dimensions are for reference only
. See current full-line price book or www
.specselect.com for finish options and product availability
.
DSP–591T
A Rev
. A
Note: Measurements may vary ± 6mm (0.25'')
Battery Operated box shown.
Hardwire Version comes
complete with Watertight
Connector and Hardwire
Converter 24VAC to 6VDC.