Use and Care Guide

Specification Drawing #4
Delta reserves the right (1) to make changes in specifications and materials, and (2) to change or discontinue models, both without notice or obligation.
Dimensions are for reference only
. See current full-line price book or www
.specselect.com for finish options and product availability
.
DSP–591TB Rev
. A
Note: Measurements may vary ± 6mm (0.25'')
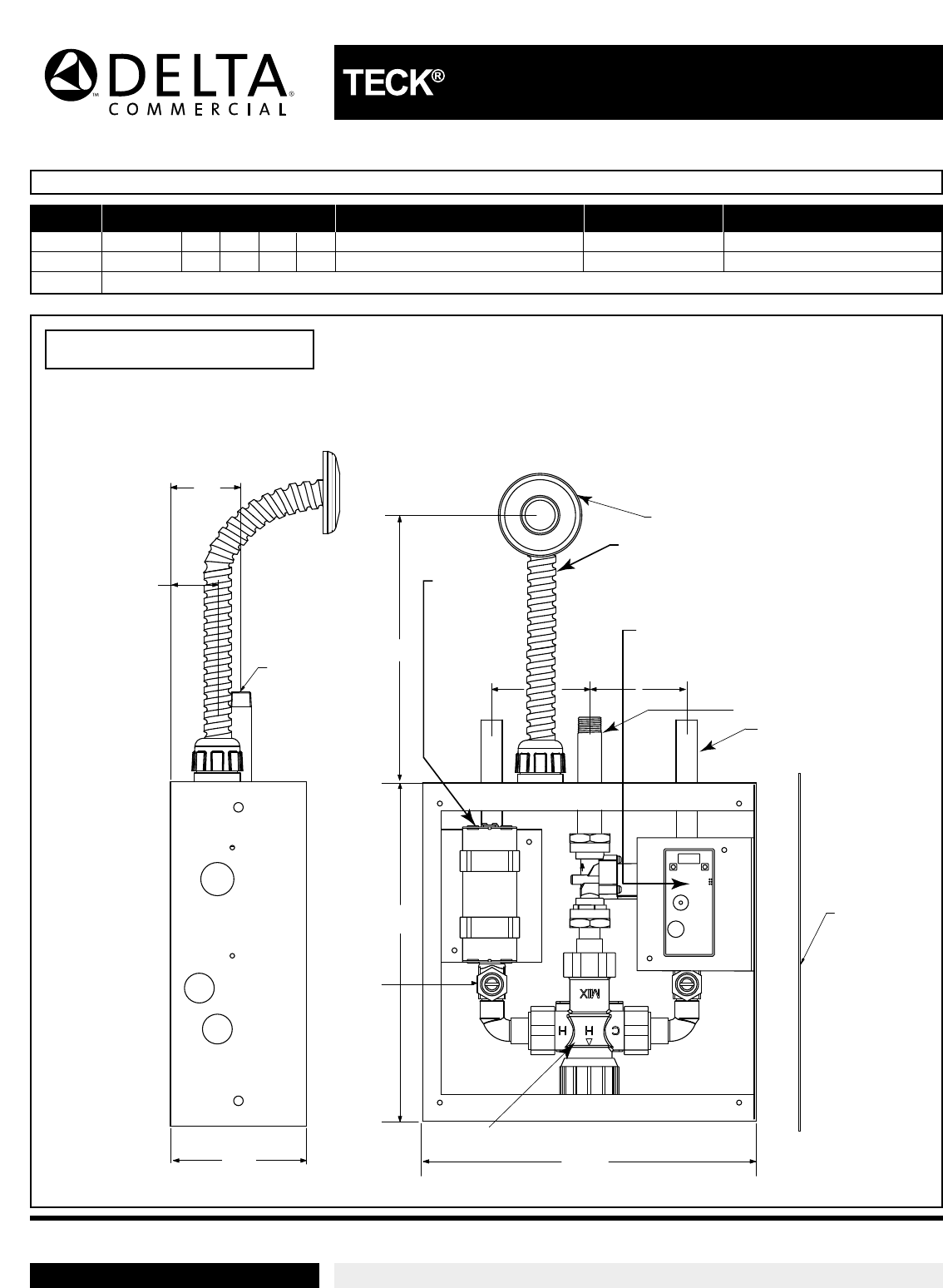
THERMOSTATIC MIXING VALVE ASSEMBLED CONTROL BOX
Outlet: 3/8" M.I.P.
35mm
(1.38")
5
3mm
(
2.07")
102mm
(4.0")
203mm
(8.0")
257mm
(10.13")
Outlet 3/8" M.I.P.
70mm (2.75") Diameter
Driver board
to be located
on this bracket
B
racket
and
battery
holder not
required
for
hardwire
models
Flexible Sensor
Cord Conduit
(Supplied
on recessed
mount box)
254mm
(10.0")
74mm
(2.9")
74mm
(2.9")
Inlets
1/2" Copper
Thermostatic Mixing Valve
with Checks
Screwdriver
Stop
305mm
(12.0")
Stainless
Steel
Cover
591T SERIES
591T SERIES
✔
PRODUCT NO. FAUCET TYPE MOUNT TYPE COVER
*591T 0 2 8 Deckmount Handwash Hardwire Recessed Mount 305mm (12") Stainless Steel
*591T 1 2 8 Deckmount Handwash Battery Recessed Mount 305mm (12") Stainless Steel
*
This product is supplied with Flexible Sensor Cord Conduit on Recessed Mount Installations.
Battery Operated box shown.
Hardwire Version comes
complete with Watertight
Connector and Hardwire
Converter 24VAC to 6VDC.