Specification Sheet

Submitted Model No.:
Specific Features:
Delta reserves the right (1) to make changes in specifications and materials, and (2) to change or
discontinue models, both without notice or obligation. Dimensions are for reference only. See full-line price
book or www.deltafaucet.com for finish options and product availability.
DSP-L-598LF Rev. F
598LF-▲MPU
with Escutcheon
598LF-▲MPU
598LF-▲MPU
798LF▲
798LF▲
▲ Designate proper finish suffix
55 E. 111th Street, Indianapolis, Indiana 46280
350 South Edgeware Road, St. Thomas, Ontario
Canada N5P 4L1
© 2016 Masco Corporation of Indiana
Min.2 1/2" (64 mm)
Clearance to Back
Splash Recommended
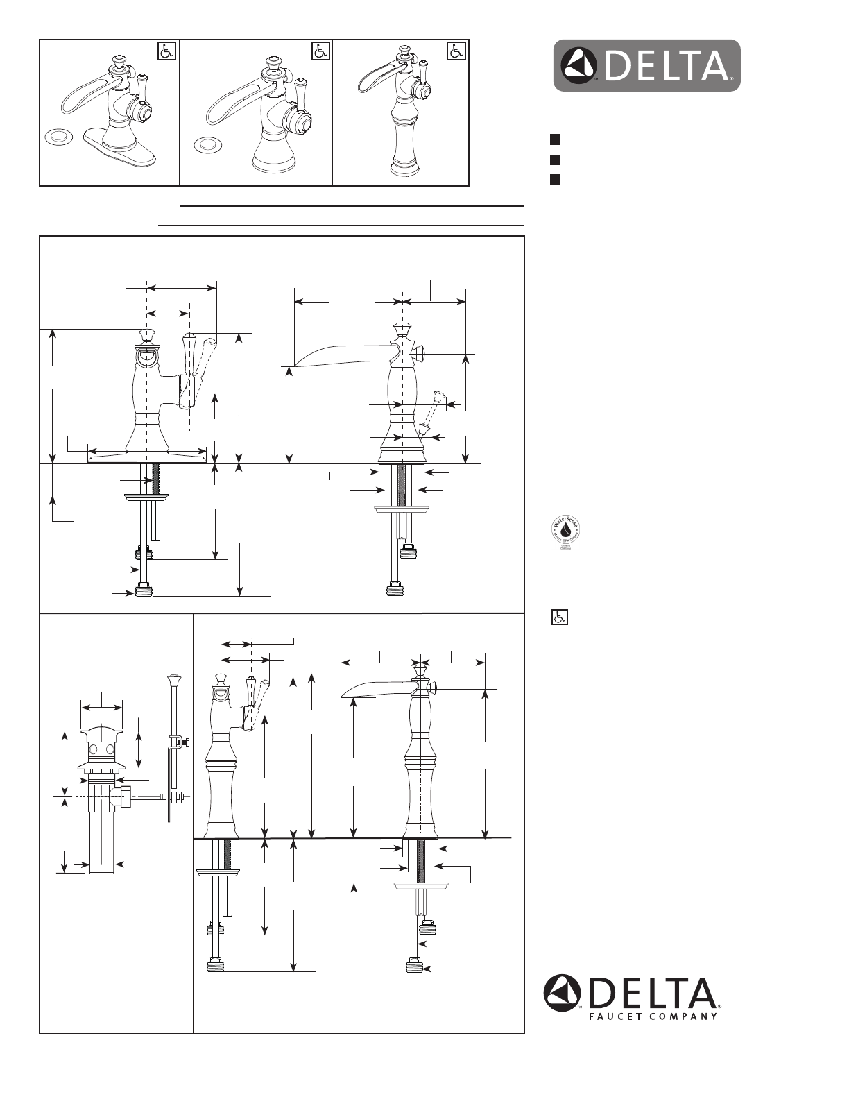
Cassidy™ Series
Single Handle Deck Mount
Single Hole Riser Models
6 13/16"
(173 mm)
6 1/8"
(54 mm)
Max. Deck
Thickness
2 1/8"
(156 mm)
4 3/8"
(111 mm)
5"
(127mm)
5 27/32"
(148 mm)
2 3/32"
(53 mm)
6 3/8"
(162 mm)
2 3/8"
(60 mm)
3 9/16"
(91 mm)
1/2"-14 NPSM
adapters
Copper Tubing
5/16-18 UNC
3/8" O.D.
1/2"-14 NPSM
adapters
Copper Tubing
3/8" O.D.
5 1/2"
(54 mm)
Max. Deck
Thickness
2 1/8"
(140 mm)
11 9/16"
(294 mm)
3 11/16"
(94 mm)
8 5/16"
(211 mm)
11 1/8"
(283mm)
9 17/32"
(242mm)
10 1/32"
(255mm)
5"
(127mm)
4 11/16"
(119 mm)
1 3/8"
(35 mm)
2 1/8"
(54 mm)
5 9/32"
(134 mm)
Min.2 1/2" (64 mm)
Clearance to Back
Splash Recommended
2 3/8"
(60 mm)
LAVATORY FAUCET
COMPLIES WITH:
•
ASME A112.18.1 M / CSA B125.1
Indicates compliance to
ICC/ANSI A117.1
•
EPA WaterSense
®
Verified compliant with 0.25% weighted average Pb
content regulations.
3 13/32"
(87 mm)
2 3/32"
(53 mm)
3 13/32"
(87 mm)
1 1/4"
(32 mm) Dia.
2 1/8"
(54 mm) Dia.
3 3/8"
(86 mm)
1 5/8"
(41 mm)
to 2 3/8"
(60 mm)
1 3/8"
(35 mm) Dia.
4 5/8"
(117 mm)
1 1/8"~1 1/2"
(29~38 mm)
Hole Size
1 1/8"~1 1/2"
(29~38 mm)
Hole Size
Metal Pop-Up (598LF only)
STANDARD SPECIFICATIONS:
•
Max. 1.20 gpm @ 60 psi, 4.54 L/min @ 414 kPa
•
One or three hole mount (escutcheon optional,
included)
•
Control mechanism is replaceable cartridge
with ceramic plates
• 1/2" NPSM threaded male inlet adapters
• Models have metal drain with pop-up type
fitting with plated flange and stopper (598LF only)
WARRANTY
•
naht rehto( strap no ytnarraw detimil emitefiL
electronic parts and batteries) and finishes:
or, for commercial users, for 5 years from
date of purchase.
•
5 year limited warranty on electronic parts
(other than batteries); or, for commercial
users, for 1 year from the date of purchase.
No warranty is provided on batteries.