Specification

COMPLIES WITH:
• ASME A112.18.1 / CSA B125.1
• ASME A112.18.2 / CSA B125.2
Indicates compliance to
ICC/ANSI A117.1
• EPA WaterSense
®
Verified compliant with 0.25% weighted
average Pb content regulations.
LAVATORY
FAUCET
■ Two Handle Deck Mount
■ 3 Hole Sink Applications
■ 4" Centerset
Submitted Model No.: _______________________________________________
Specific Features: __________________________________________________
STANDARD SPECIFICATIONS:
DSP-L-B2511LF Rev. A
0
1
2
3
4
5
0 10 20 30 40 50 60 70 80 90
Pressure (PSI)
Flow (U.S. Gallons Per Minute)
6
0 69 138 207 276 345 414 483 552 621
0
3.8
7.6
11.4
15.1
18.9
22.7
Pressure (kPa)
Flow (Liters Per Minute)
®
®
U
P
C
Delta reserves the right (1) to make changes in specifications and materials, and (2) to change or discontinue
models, both without notice or obligation. Dimensions are for reference only. See current full-line price book or
www.specselect.com for finish options and product availability.
▲ Designate Proper Finish Suffix
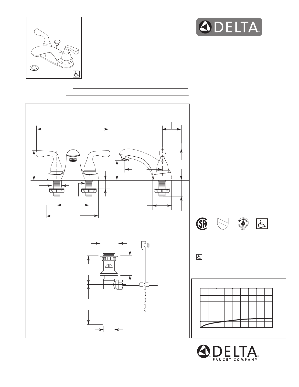
2 1/8"
(54 mm)
Dia.
3 1/2"
(89 mm)
4 7/8"
(124 mm)
1 1/4"
(32 mm)
Dia.
1 5/8" (42 mm)
to
2 3/8" (61 mm)
B2511LF-PPU
• Two handle lavatory faucets for exposed mounting
on 3 hole sinks with 4" centers.
• 4" (102 mm) centerset.
• 4 13/32" (112 mm) long, 3 5/8" (92 mm) high spout.
• Hot and cold stems are interchangeable.
• 1/4 turn handle stops.
• 1/2"-14 NPSM threaded male inlet shanks.
• Control mechanism is a rotating cylinder type with
stainless steel plate and 90° rotation, with
replaceable non-metallic seats.
• Maximum flow rate 1.5 gpm @ 60 PSI.
8 13/16"
(224 mm)
3 1/2"
(86 mm)
4"
(102 mm)
Centers
1"
(25 mm)
Max. Deck
Thickness
6 3/32"
(155 mm)
1/2"-14 NPSM
4 13/32"
(112 mm)
2 5/16"
(59 mm)
3 5/8"
(92 mm)
2 9/32"
(58 mm)
2"
(51mm)
Min. 2 1/2" (64 mm)
Clearance to Back Splash
Recommended
3 X 1 1/8"~1 1/2"
(29~38 mm)
Hole Size
55 E. 111th Street, Indianapolis, Indiana 46280
350 South Edgeware Road, St. Thomas, Ontario Canada N5P 4L1
© 2012 Masco Corporation of Indiana
WARRANTY
Lifetime limited warranty on parts (other than
electronic parts and batteries) and finishes; or
for commercial users, for 5 years from the date
n
of purchase.
5 year limited warranty on electronic parts (other
than batteries); or for commercial users, for 1 year
from the date of purchase. No warranty is provided
on batteries
n