Technical Specifications

Submitted Model No.:
Specific Features:
Delta reserves the right (1) to make changes in specifications and materials, and (2) to change or discontinue models, both
without notice or obligation. Dimensions are for reference only. See current full-line price book or www.deltafaucet.com for
finish options and product availability.
Delta Faucet Company
55 E. 111th Street, Indianapolis, IN 46280
350 South Edgeware Road, St. Thomas, ON N5P 4L1
© 2019 Delta Faucet Company
DSP-L-B2511LF-PPU Rev. F
BATHROOM FAUCET
■ Foundations
®
Collection
■ Two Handle Centerset Deck Mount
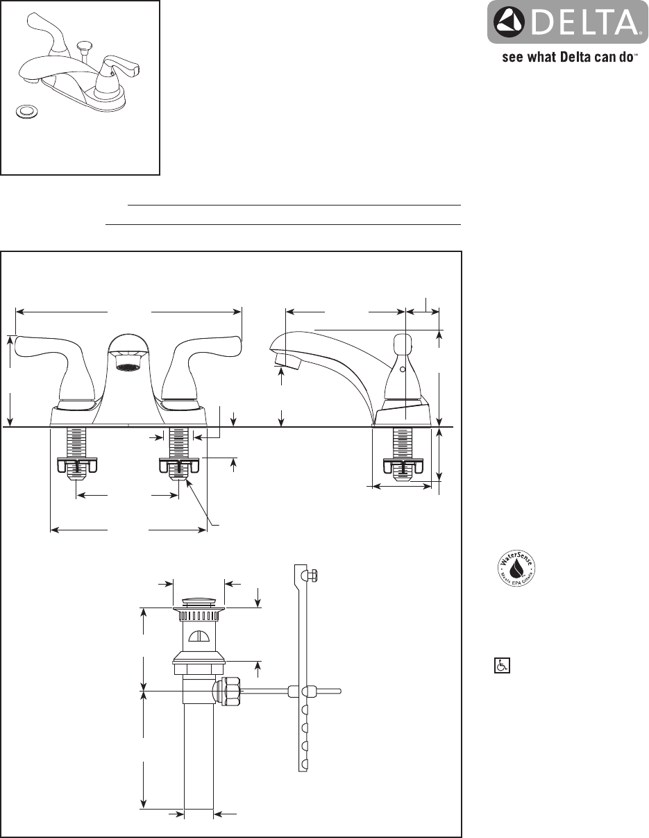
STANDARD SPECIFICATIONS:
• Maximum 1.5 gpm @ 60 psi, 5.7 L/min @ 414 kPa
• Max flow rate (ECO models only): 1.2 gpm @ 60 psi,
4.5 L/min @ 414 kPa
• Three hole mount
• Solid brass end valves and spout body
• Hot and cold stems are interchangeable
• 1/4 turn handle stops
• Control mechanism is a rotating cylinder type with
stainless steel plate and 90° rotation, with replaceable
non-metallic seats
• Models have drain with pop-up type fitting with plated
flange and stopper
• RP76691 thick deck mounting kit adds 1 1/4" (25 mm)
to maximum deck thickness
WARRANTY:
• Parts and Finish - Lifetime limited warranty; or for
commercial purchasers, 10 years for multi-family
residential (apartments and condominiums) and 5 years
for all other commercial uses, in each case from the
date of purchase.
• Electronic Parts and Batteries (if applicable) -
5 years from the date of purchase; or for commercial
purchasers, 1 year from the date of purchase.
No warranty is provided on batteries.
Certified by
CSA Group
COMPLIES WITH:
• ASME A112.18.1 / CSA B125.1
• ASME A112.18.2 / CSA B125.2
Indicates compliance to
ICC/ANSI A117.1
• EPA WaterSense
®
B2511LF-PPU
B2511LF-PPU-ECO
B2514LF-PPU-ECO
3 1/2"
(86 mm)
2 5/16"
(59 mm)
1 1/4"
(32 mm)
Max. Deck
Thickness
4 7/16"
(112 mm)
Min. 2 1/2" (64 mm)
Clearance to Back Splash
Recommended
1/2"-14
NPSM
2 1/8"
(54 mm)
Dia.
1 5/8" (42 mm)
to
2 3/8" (61 mm)
3 1/2"
(89 mm)
4 7/8"
(124 mm)
1 1/4"
(32 mm)
Dia.
8 13/16"
(224 mm)
4"
(102 mm)
3x 1 1/8" to
1 1/2" (29 mm
to 38 mm)
hole size
3 5/8"
(92 mm)
2"
(51 mm)
2 1/4"
(58 mm)
6 1/8"
(155 mm)