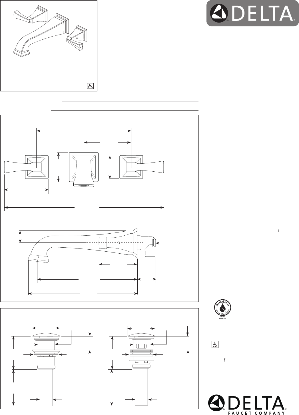
Technical Specifications

■ Dryden™ Series Bath Collection
■ 3 Hole On Wall
■ 8" Centers
■ Two Handle
LAVATORY
FAUCETS
STANDARD SPECIFICATIONS:
• Two handle lavatory faucet for wall mount installation.
• Maximum 1.5 gpm @ 60 psi, 5.7 L/min @ 414 kPa.
• Cast brass body.
• 8" centers widespread.
• 8 5/16" (211 mm) long rigid spout.
• 1/4 turn handle stops.
• Control mechanism shall be of the rotating
cylinder type with ceramic discs and 90° rotation.
• 1/2" -14 NPT threaded female inlets.
• Rough-in R3500-WL required for installation.
• Purchase drain separately.
• Accomodates wall thicknesses from 1/8" to 1 1/8".
WARRANTY
• Lifetime limited warranty on parts (other than
electronic parts and batteries) and inishes; or
for commercial users, for 5 years from the date
of purchase.
• 5 year limited warranty on electronic parts (other
than batteries); or for commercial users, for 1 year
from the date of purchase. No warranty is provided
on batteries.
COMPLIES WITH
• ASME A112.18.1/CSA B125.1
• ASME A112.18.2 / CSA B125.2
Indicates compliance to
ICC / ANSI A117.1
• EPA WaterSense
®
• Veri ied compliant with .25% weighted average
Pb content regulations.
DSP-L-T3551LF-WL Rev. A
8"
(203 mm)
2 3/4"
(70 mm)
+/- 1/2"
(13 mm)
Rough-In
Depth
3 11/16"
(94 mm)
2 3/4"
(70 mm)
R3500-WL
Required
for
Installation
2 3/4"
(70 mm)
1 5/8"
(41 mm)
Dia
1 7/8"
(48 mm)
Max.
to
1"
(25 mm)
Min.
1 1/4"
(32 mm)
Dia.
3 1/16"
(78 mm)
2 7/16"
(61 mm)
Dia
3 11/16"
(94 mm)
1 5/8"
(41 mm)
Dia
1 7/8"
(48 mm)
Max.
to
1"
(25 mm)
Min.
1 1/4"
(32 mm)
Dia.
3 1/16"
(78 mm)
2 7/16"
(61 mm)
Dia
72172 72173
4"
(102 mm)
3 1/4"
(82 mm)
8 5/16"
(211 mm)
3 11/16"
(94 mm)
2 7/16"
(62mm)
Square
13 5/16"
(339 mm)
Submitted Model No.:
Specic Features:
T3551LF-WL▲
Delta reserves the right (1) to make changes in specications and materials, and (2) to change or discon-
tinue models, both without notice or obligation. Dimensions are for reference only. See current full-line
price book or www.deltafaucet.com for nish options and product availability.
▲ Designate proper nish sufx
55 E. 111th Street, Indianapolis, Indiana 46280
350 South Edgeware Road, St. Thomas, Ontario Canada N5P 4L1
© 2015 Masco Corporation of Indiana
1 15/16"
(49mm)
Square
1 1/4"
(31 mm)
9 3/16"
(233 mm)