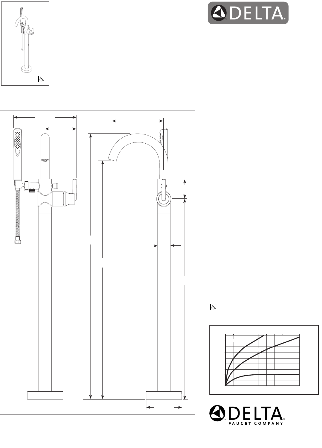
Dimensions Guide

2"
(51 mm)
Submitted Model No.: _______________________________________________
Specific Features: __________________________________________________
STANDARD SPECIFICATIONS:
• Handshower max. 2.0 gpm @ 80 PSI, 7.6 L/Min @ 550 kPa
• Hot and cold indicators
• Swing spout
• 60"-82" stretchable hose with metal fittings
• Auto resetting diverter
• Dual integral check valves
• Optional high flow cartridge (RP73598) available
• Pivot handshower holder
• Must order R4700-FL or R4700-FLWS
T4759-FL▲
0
1
2
3
4
5
0 10 20 30 40 50 60 70 80 90
Pressure
(
PSI
)
Flow (U.
S
. Gallons Per Minute)
6
0 69 138 207 276 345 414 483 552 621
0
3.8
7.6
11.4
15.1
18.9
22.7
Pressure (kPa
)
Flow (Liters Per Minute
)
7
26.5
30.3
34.1
8
9
Handshower
Tub Filler
With RP73598
FLOOR MOUNT
TUB FILLER
■ Coordinates with Trinsic
®
and
Compel
®
Bath Collections
Delta reserves the right (1) to make changes in specifications and materials, and (2) to change or discontinue
models, both without notice or obligation. Dimensions are for reference only. See current full-line price book or
www.deltafaucet.com for finish options and product availability.
37"
(940 mm)
COMPLIES WITH:
•
ASME A112.18.1 / CSA B125.1
Indicates compliance to
ICC/ANSI A117.1 - Valve control only
DSP-B-T4759-FL Rev. D
55 E. 111th Street, Indianapolis, Indiana 46280
350 South Edgeware Road, St. Thomas, ON N5P 4L1
© 2015 Masco Corporation of Indiana
8"
(203 mm)
▲ Designate Proper Finish Suffix
9 3/4"
(248 mm)
WARRANTY
•
Lifetime limited warranty on parts (other than
electronic parts and batteries) and finishes:
or, for commercial users, for 5 years from
date of purchase.
•
5 year limited warranty on electronic parts
(other than batteries); or, for commercial
users, for 1 year from the date of purchase.
No warranty is provided on batteries.
4 7/8"
(114 mm)
31"
(787 mm)
3"
(76 mm)
41"
(1041 mm)
5 1/2"
(140 mm)
FEATURES:
• Multichoice
®
pressure balance cartridge