Dimensions Guide

Submitted Model No.: _______________________________________________
Specific Features: __________________________________________________
DSP-B-T2768 Rev. D
COMPLETE VALVE COMPLIES WITH:
•
ASME A112.18.1 / CSA B125.1u
Indicates compliance to
ICC/ANSI A117.1 - Valve control only
•
EPA WaterSense
®
- Applies to handshower only -
59567*
ROMAN
TUB/WHIRLPOOL
FAUCET TRIM
■ Ara™ Bath Collection
■ Three Hole Installation (T2768 Series)
■ Four Hole Installation (T4768 Series)
■ Rough-In Kit Must Also be Ordered to
Complete Installation (R4707 for four
hole and R2707 for three hole)
STANDARD SPECIFICATIONS:
• Trim Only for two handle Roman Tub faucet for
concealed mounting
• Temperature and volume controlled with handles
• Red/blue button covers on handle for
hot/cold identification
• Rough-In kit must also be ordered to complete
installation (R4707 for four hole and R2707 for three
hole). There are separate specification sheets on
each rough-in kit if more details are required.
• Handshower includes double check valves for backflow
prevention (T4768)
• H
2
Okinetic
®
Handshower water efficient flowrate of 1.75
gpm @ 80 psi, 6.6 L/min @ 550 kPa
0
1
2
3
4
5
0102030405060708090
Pressure (PSI)
Flow (U.S. Gallons Per Minute)
6
069 138 207 276 345 414 483 552 621
0
3.8
7.6
11.4
15.1
18.9
22.7
Pressure (kPa)
Flow (Liters Per Minute)
T2768▲
Delta reserves the right (1) to make changes in specifications and materials, and (2) to change or discontinue
models, both without notice or obligation. Dimensions are for reference only. See current full-line price book or
www.deltafaucet.com for finish options and product availability.
T4768▲
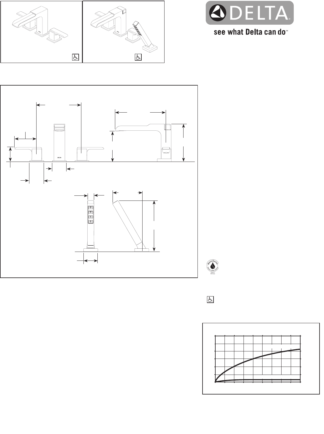
5 3/8"
(137 mm)
2 9/16"
(65 mm)
6 11/16"
(170 mm)
9"
(229 mm)
2 1/2"
(64 mm)
Square
10" - 16"
(254 mm -
406mm)
Centers
(Flexible)
2 1/2"
(64 mm)
Square
3 7/8"
(98 mm)
0
1
2
3
4
5
0102030405060708090
Pressure (PSI)
Flow (U.S. Gallons Per Minute)
6
069 138 207 276 345 414 483 552 621
0
3.8
7.6
11.4
15.1
18.9
22.7
Pressure (kPa)
Flow (Liters Per Minute)
5
10
15
20
25
30
18.9
0
0102030405060708090
Pressure (PSI)
Flow (U.S. Gallons Per Minute)
069 138 207 276 345 414 483 552 621
0
37.9
56.8
75.7
94.6
113.6
Pressure (kPa)
Flow (Liters Per Minute)
2.0 gpm @ 80 psi
Kitchen, Lavatory, Bar
17/18/19 gpm @ 60 psi
Roman Tubs
0
1
2
3
4
5
0102030405060708090
Pressure (PSI)
Flow (U.S. Gallons Per Minute)
6
Showerhead
069 138 207 276 345 414 483 552 621
0
3.8
7.6
11.4
15.1
18.9
22.7
Pressure (kPa)
Flow (Liters Per Minute)
2.5 gpm @ 80 psi
Showerheads, Hand Held Showers
1.0 gal = 3.785 liters
1.0 psi = 6.895 kPa
Roman Tub
1.75 GPM Hand Shower
▲ Designate Proper Finish Suffix
9"
(229 mm)
1 1/8"
(29 mm)
Square
2 1/2"
(64 mm)
Square
5 3/16"
(132 mm)
WARRANTY
•
Lifetime limited warranty on parts (other than
electronic parts and batteries) and finishes:
or, for commercial users, for 5 years from
date of purchase.
•
5 year limited warranty on electronic parts
(other than batteries); or, for commercial
users, for 1 year from the date of purchase.
No warranty is provided on batteries.
Your Delta Faucet hand shower incorporates a backflow protection system that has been
tested to be in compliance with ASME A112.18.3, CSA B125.1 and ASME A112.18.1. It
incorporates two certified check valves in series, which operate independently and are
integral, non-serviceable parts of the wand assembly.
u
Delta Faucet Company
55 E. 111th Street, Indianapolis, IN 46280
350 South Edgeware Road, St. Thomas, ON N5P 4L1
© 2017 Delta Faucet Company