Installation Guide
Table Of Contents
- Safety
- Specifications
- Qualified Installing Agency
- Product Features
- Product Identification
- Unpacking
- Local Codes
- Water Vapor: A By-Product Of Unvented Room Heaters
- Air For Combustion and Ventilation
- Installation
- Operation
- Inspecting Burners
- Care And Maintenance
- Troubleshooting
- Parts
- Replacement Parts
- Accessories
- Service Hints
- Technical Service
- Warranty

www.factorybuysdirect.com
200373-01A12
INSTALLATION
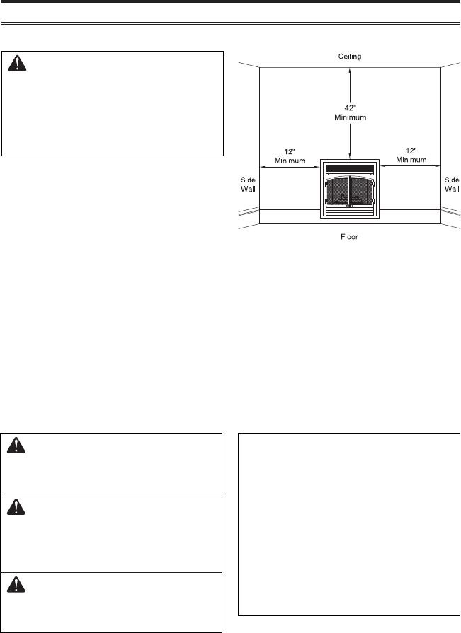
CLEARANCES TO COMBUSTIBLES
Figure 5 - Minimum Clearance for
Combustible to Wall and Ceiling
MANTEL (IF APPLICABLE)
Assemble and install your mantel at this time. Mantel instructions are inside
the mantel box. Mantel must be in place before you connect to the gas supply.
WARNING: You must main-
tain the minimum clearances. If
possible, provide greater clear-
ances from oor, ceiling, and
adjoining wall. Measure from
outermost point of heater.
Note: This rebox can not be installed in an
existing replace. Install this rebox only in
a ProCom Heating, Inc. mantel accessory
approved for this product.
Minimum Clearances For Side
Combustible Material, Side Wall
and Ceiling
A. Clearance from the side of the replace to
any combustible material and wall should
not be less than 12" (see Figure5).
B. Clearance from the top of the replace to
the ceiling must not be less than 48".
BUILT-IN FIREPLACE INSTALLATION
WARNING: Do not allow any
combustible materials to overlap
the rebox front.
WARNING: Do not allow
combustible or noncombustible
materials to cover any necessary
openings like louvered slots.
WARNING: Never modify or
cover the louvered slots on the
front of the rebox.
Built-in installation of this replace involves
installing replace into a framed-in enclosure.
This makes the front of the replace ush
with wall. If installing a built-in mantel above
the replace, you must follow the clearances
shown in Figure 6, page 13.
NOTICE: Surface temperatures
of adjacent walls and mantels
become hot during operation.
Walls and mantels above the
replace may become hot to the
touch. If installed properly, these
temperatures meet the require-
ment of the national product
standard. Follow all minimum
clearances shown in this manual
(see Figure 6, page 13).










