Installation Guide

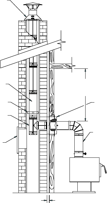
NOTE: MINIMUM CLEARANCE FOR
SINGLE WALL STOVEPIPE IS 18 INCHES.
FOR DVL PIPE, THE MINIMUM IS 8
INCHES.
EXTEND-A-CAP ASSEMBLY
MINIMUM
CLEARANCE:
(NOTE BELOW)
COMBUSTIBLE WALL
THIMBLE ASSEMBLY
PIPE (AS REQUIRED)
RIGID PIPE
SPACER
RIGID TEE
ACCESS DOOR
(FOR CLEANING)
1 INCH AIR GAP
10
Adjustable Sleeve until the base of the Wall
Pass Through is ush against the masonry
(Fig.17) NOTE: The Wall Pass Through
must protrude a minimum of 2" into the
room (Fig.16).
Attach the 10" Long Rigid Pipe Section to the
front of the Wall Pass Through with four sheet
screws through the L-brackets (Fig.15, Fig.16)
Position the appliance, at it’s nal location.
STEP FOUR: Push the Adjustable Sleeve from
the Wall Pass Through into the branch of the
tee. Connect Adjustable Sleeve to Tee Branch
with the pre-formed buttons. Recommended
to grout in place with a high temperature grout
(Fig.15, Fig.16).
STEP FIVE: Slide the Wall Pass-Through
through the square trim plate and into the
Figure 15










