Installation Guide

4
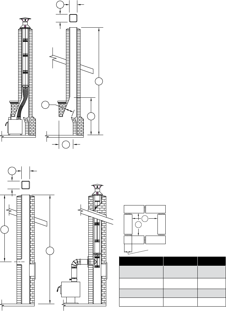
TYPE A B
6" ROUND 7" 7"
8" ROUND 9" 9"
6" OVAL 8" 5 1/2"
8" OVAL 11 5 1/2" - 6"
IMPORTANT MEASUREMENTS
6
4
3
2
1
5
4
1
Figure 1
Figure 2
Figure 3
3 1/2”
A
B
1. Flue size I.D.:
• _____________________
2. Opening of replace:
• height _____________
• width ______________
• depth ______________
3. Damper opening:
• length______________
• width ______________
4. Total chimney and replace height:
• ___________________
5. Total chimney height to tee opening:
• ___________________
6. Height to rst tile:
• ___________________
7. Height of appliance:
• ___________________










