Specification Sheet

No Lead Child Soft Sides
®
Drinking Fountain
Wall Mount, Fully Exposed
Barrier-Free Access
Model ECDFPW314C
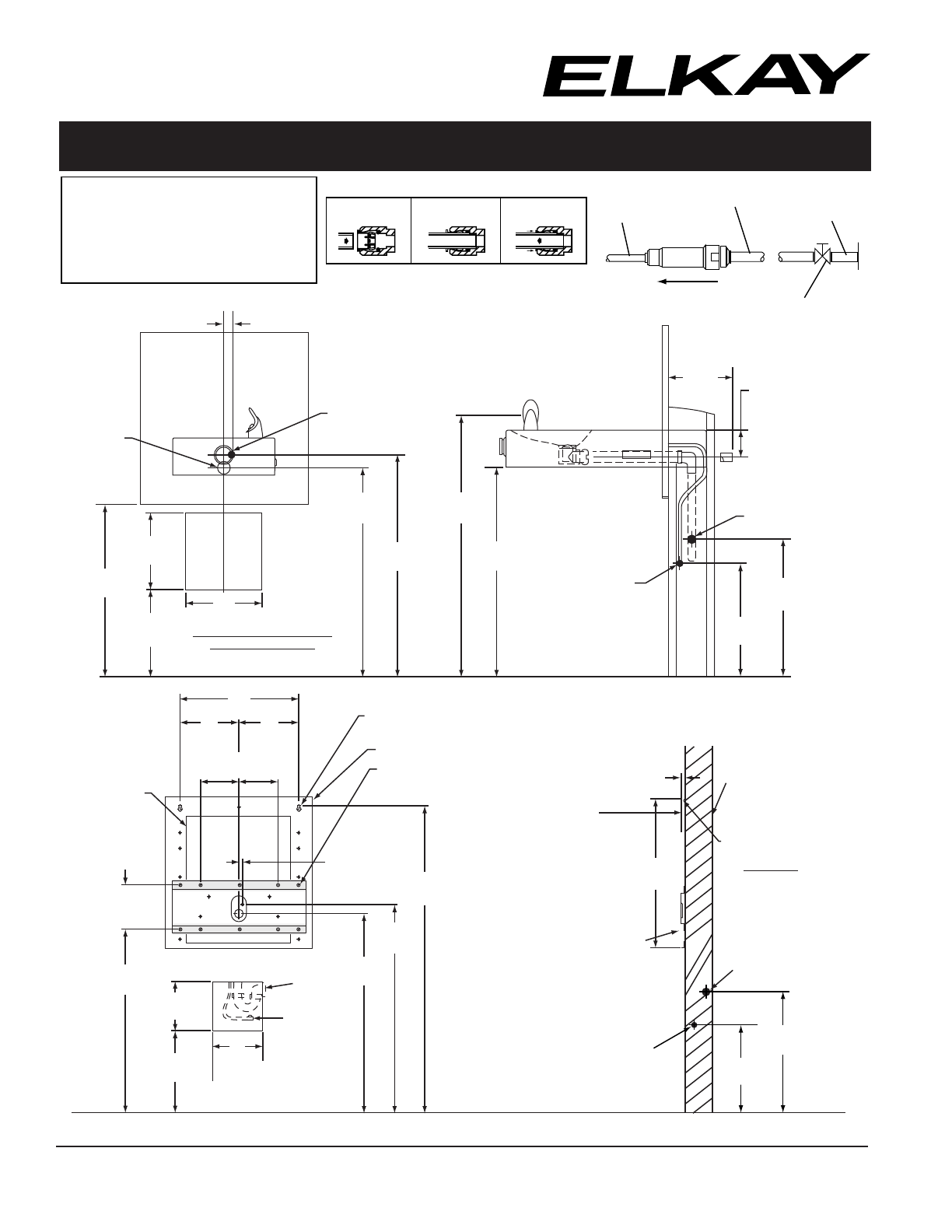
ROUGH-IN DIMENSIONS
®
Elkay Manufacturing Company
2222 Camden Court
Oak Brook, IL 60523
Printed in U.S.A.
©2001 Elkay Mfg. Co.
14-42 (12/01)
INSTALLER NOTE
THIS DRINKING FOUNTAIN IS FURNISHED
WITH A BUBBLER AND VALVE INCLUDING
ALL CONNECTING FITTINGS WHICH ARE
MANUFACTURED OF COMPLETELY LEAD
FREE MATERIAL. IT IS RECOMMENDED THAT
SHUT OFF VALVE AND SUPPLY TUBING
SUPPLIED BY OTHERS BE NON-METALLIC.
OPERATION OF QUICK CONNECT FITTINGS
SIMPLY PUSH IN
TUBE TO ATTACH
TUBE IS SECURED
IN POSITION
PUSH IN COLLET
TO RELEASE TUBE
PUSHING TUBE IN BEFORE
PULLING IT OUT HELPS TO
RELEASE TUBE
A B
C
NOTE: WATERFLOW
DIRECTION
SERVICE STOP
(NOT FURNISHED)
3/8" O.D. TUBE CONNECT
COLD WATER SUPPLY
BY OTHERS
1/4" O.D. TUBE
WATER INLET
TO COOLER
BUILDING WATER
INLET
9"
(229mm)
9"
(229mm)
9-7/8"
(251mm)
17-1/2"
(445mm)
12-1/2"
(318mm)
1-1/4" I.P.S. WASTE
(LEFT OR RIGHT)
WASTE ELBOW
EXTENSION
AND TRAP BY
OTHERS (SHOWN
WITHIN WALLS)
**FURNISHED LENGTH
(CUT TO SUIT)
3-3/16"
(810mm)
3/8" SUPPLY
LEFT OR RIGHT SIDE
*30"
(762mm)
*24"
(610mm)
26-7/16"
(640mm)
25-3/16"
(640mm)
AP99
ACCESS PANEL
(OPTIONAL)
21-1/2"
(546mm)
FINISHED FLOOR
3/8" SUPPLY
1-1/4" I.P.S.
WASTE
1/2" (13mm)
C
L
REAR ACCESS REQUIRED
FOR INSTALLATION
OR OPTIONAL FRONT ACCESS
PANELS AP99
**TBD
*Child ADA Requirement
20-1/8"
(511mm)
5/8"
(16mm)
WASTE 1-1/4" I.P.S.
LEFT OR RIGHT SIDE.
WASTE IS SHOWN
IN WALL BUT MAY
BE BEHIND WALL.
12-1/2"
(318mm)
17-1/2"
(445mm)
SUPPLY 3/8" I.P.S.
LEFT OR RIGHT SIDE
INSTALL (2)
1/4" (6mm) SCREWS
OR EQUIVALENT
(BY OTHERS)
INSTALL (12) 5/16" (8mm)
LAG SCREWS OR
EQUIVALENT WITH
FLAT WASHERS
(BY OTHERS)
SIDE VIEW
LOAD BEARING
WALL CONSTRUCTION
NOTE: Reinforce the wall in the shaded
areas to support up to 300 lbs. static load.
ATTACH SURFACE
MOUNTING PLATE
TO FINISHED WALL
FINISHED FLOOR
8"
(203mm)
10-3/8"
(264mm)
8"
(203mm)
WASTE
TRAP
(BY OTHERS)
SUPPLY
(SHUT OFF
BY OTHERS)
FRONT VIEW
23-1/16"
(586mm)
6"
(152mm)
8"
(203mm)
8"
(203mm)
16"
(406mm)
WALL PLATE
ASSEMBLY
1/4" (6mm) DIA. HOLES FOR
MOUNTING PLATE TO WALL
BACK PANEL
3/8" (10mm) DIA. HOLES
FOR MOUNTING PLATE
TO WALL (10)
1/2"
(13mm)
39-9/16"
(1005mm)
26-7/16"
(672mm)
25-3/16"
(640mm)
5-1/4"
(133mm)


