Manual

Table Of Contents
Bassoon Installation Guide Technical Specifications
MAN-BASIG (Ver. 1.502)
www.elmomc.com
67
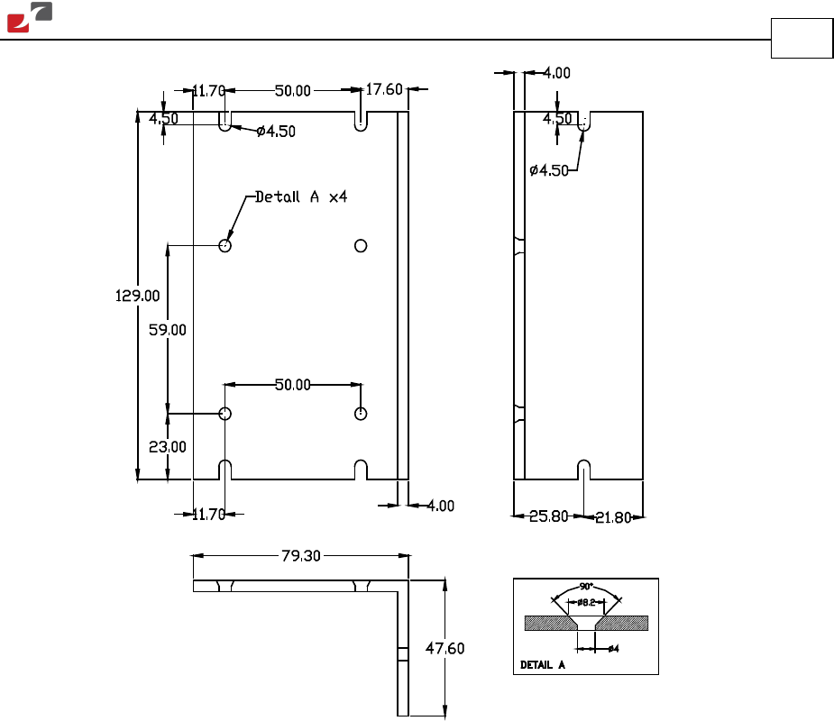
BAS_L_Shape
Figure 35: L-Shaped Heat Sink Dimensions