- Emerson Electric Co. Automobile Parts User Manual
Table Of Contents

Data sheet
Sheet No.:
Date: January 2010
Copyright © Emerson Process Management. The information in this document is subject to change without notice.
Updated data sheets can be obtained from our website www.El-O-Matic.com or from your nearest Valve Automation Center USA: +1 813 319 0266 Europe: +31 74 256 10 10 Asia-Pacific: +65 6501 4600
www.El-O-matic.com
A1.104.02 Rev. B
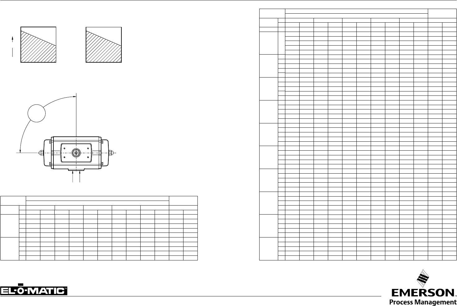
SPRING RETURN ACTUATOR TORQUE (In.lb.) 90°
Springset
nr.
Air Stroke (lbf/in)
Spring Stroke
SUPPLY PRESSURE (in PSI)
Actuator
Type
40 60 80 100 120 (lbf/in)
C D C D C D C D C D E F
ES 12
2 - - 48 24 80 55 111 87 143 119 63 40
ES 25
2
3
4
5
6
71 44 130 103 189 162 248 221 306 280 62 39
48 8 107 67 166 126 225 185 284 244 94 59
- - 85 31 144 90 203 149 262 208 125 78
- - - - 121 54 180 113 239 172 156 98
- - - - 99 18 158 77 217 136 188 117
ES 40
2 133 82 243 193 354 303 464 414 575 524 117 73
3 91 15 201 125 312 236 422 346 533 457 176 110
4 - - 159 58 270 169 380 279 491 390 234 146
5 - - - - 228 101 338 212 449 322 293 183
6 - - - - 185 34 296 144 406 255 351 220
ES 65
2 196 117 365 285 533 454 701 622 870 790 186 117
3 129 10 297 178 466 347 634 515 802 683 279 176
4 - - 230 71 398 240 567 408 735 576 372 234
5 - - - - 331 133 500 301 668 470 465 292
6 - - - - 264 26 432 194 601 363 558 351
ES 100
2 303 192 552 441 801 690 1050 939 1299 1188 258 161
3 211 44 460 293 709 542 958 791 1206 1039 387 242
4 - - 367 144 616 393 865 642 1114 891 516 323
5 - - - - 523 245 772 494 1021 743 646 403
6 - - - - 430 96 679 345 928 594 775 484
ES 150
2 485 297 884 696 1283 1094 1681 1493 2080 1892 423 259
3 337 54 735 453 1134 852 1533 1250 1931 1649 634 388
4 - - 587 210 985 609 1384 1007 1783 1406 845 517
5 - - - - 837 366 1235 764 1634 1163 1056 647
6 - - - - 688 123 1087 522 1485 920 1268 776
ES 200
2 656 406 1202 952 1747 1498 2293 2043 2838 2589 579 362
3 448 74 994 619 1539 1165 2085 1710 2631 2256 868 542
4 - - 786 287 1332 832 1877 1378 2423 1924 1158 723
5 - - - - 1124 500 1669 1045 2215 1591 1447 904
6 - - - - 916 167 1462 713 2007 1258 1736 1085
ES 350
2 1105 684 2053 1632 3001 2580 3949 3528 4897 4476 1025 658
3 727 95 1675 1043 2623 1991 3571 2939 4519 3887 1537 987
4 - - 1297 455 2245 1403 3193 2351 4141 3299 2049 1317
5 - - - - 1866 814 2814 1762 3762 2710 2561 1646
6 - - - - 1488 225 2436 1173 3384 2121 3074 1975
ES 600
2 1920 1183 3531 2794 5142 4405 6753 6016 8364 7628 1723 1082
3 1298 193 2909 1804 4520 3415 6131 5026 7742 6637 2585 1624
4 - - 2287 814 3898 2425 5509 4036 7120 5647 3446 2165
5 - - - - 3276 1434 4887 3046 6498 4657 4308 2706
6 - - - - 2654 444 4265 2055 5876 3666 5169 3247
ES 950
2 2898 1777 5303 4182 7708 6587 10113 8992 12518 11397 2563 1587
3 1986 304 4391 2709 6796 5114 9201 7519 11606 9924 3844 2381
4 - - 3479 1236 5884 3641 8288 6046 10693 8451 5125 3175
5 - - - - 4971 2168 7376 4573 9781 6978 6407 3968
6 - - - - 4059 695 6464 3100 8869 5505 7688 4762
ES 1600
2 4765 2988 8741 6964 12716 10939 16692 14915 20668 18890 4193 2646
3 3244 578 7220 4554 11196 8530 15171 12505 19147 16481 6289 3970
4 - - 5699 2145 9675 6120 13650 10096 17626 14071 8385 5293
5 - - - - 8154 3711 12129 7686 16105 11662 10481 6616
6 - - - - 6633 1301 10608 5277 14584 9252 12578 7939
Springset
nr.
Air Stroke (lbf/in)
Spring Stroke
SUPPLY PRESSURE (in PSI)
Actuator
Type
40 60 80 100 120 (lbf/in)
C D C D C D C D C D E F
PS 2500
6 6881 4278 12875 10273 18869 16267 24863 22261 30858 28255 7013 4401
8 5251 1781 11245 7775 17239 13769 23233 19764 29228 25758 9351 5868
10 - - 9615 5278 15609 11272 21603 17266 27597 23260 11689 7335
12 - - 7985 2780 13979 8774 19973 14768 25967 20763 14026 8803
14 - - - - 12349 6277 18343 12271 24337 18265 16364 10270
PS 4000
6 11701 7310 21862 17472 32024 27633 42185 37795 52347 47956 11835 7429
8 8949 3096 19111 13257 29272 23419 39434 33580 49595 43742 15780 9905
10 - - 16359 9042 26521 19204 36682 29365 46844 39527 19725 12381
12 - - 13608 4828 23770 14989 33931 25150 44093 35312 23670 14857
14 - - - - 21018 10774 31180 20936 41341 31097 27615 17333
SINGLE ACTING TORQUE
91.5°
C
F
D E
-0.5°
91°
AB
OPEN
CLOSED
F
End
Rotation
Clockwise
D
End
Rotation
Counter Clockwise
C
Start
SPRING STROKEAIR STROKE
Torque
E
Start
Note
1. Emerson Process Management
recommends that the valve manufacturer
supply the maximum required torque values
(Including any adjustments or suggested
safety factors for valve service conditions or
application).
Additionally, the valve manufacturer must
identify at which position(s) and direction(s)
of rotation (Counter Clock Wise or Clock
Wise) these maximum requirements occur.
2. If in doubt, or you require any assistance
with sizing actuators, do not hesitate to
contact your nearest Emerson's Valve
Automation Division representative.
3 Pressure on port "A" opens the actuator*
4 The actuator is shown in closed position*
(* code A, data sheet A1.504)










