- Emerson Electric Co. Automobile Parts User Manual
Table Of Contents

20 DOC,F20,EDN Rev.: -
Input
signal
Rotary
actuator
Linear
actuator
1
2
A
B
Close
B
A
Direct acting
Input
signal
Rotary
actuator
Linear
actuator
1
2
A
B
Close
B
A
Reverse acting
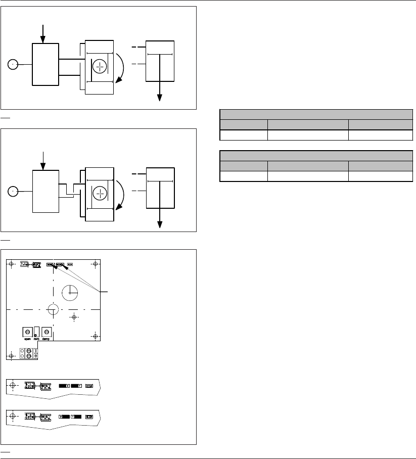
5.1 Failure Modes - Double acting
The standard setup for double acting actuators is so that an
increasing input signal opens the valve. Signal failure, then,
moves the valve to the closed position . This may be changed
to “Open on signal failure” by changing the setup to REVERSE
ACTING.
The effect of signal and air failure depends on the way the air
connections and the potentiometer connections are made:
5.0 Failure Modes / Ausfallarten / Storingen
5.0
5.1
5.1.1 Changes for Reverse Acting
To change from the standard setup to reverse acting:
1. Change the tubing (see fig. 5.1).
2. Remove the cover.
3. Change the action jumper setting by setting both jumpers to
the right side (see fig. 5.2).
4. Replace the cover taking care that the “O” ring seal is in
place and the fixing screws are tightened correctly.
Action Air failure Signal failure
Direct Position not defined Closed
Action Air failure Signal failure
Reverse Position not defined Open
1. Direct actin
g
- Standard Setu
p
2. Reverse actin
g
Action "Direct"
Wirkungsweise "Direkt"
Werkwijze "Direkt"
Action "Reverse"
Wirkungsweise "Umgekehrt"
Werkwijze "Omgekeert"
5.2
- Jumper setting
"Action"
- Jumper Einstellung
"Wirkungsweise
- Jumper instelling
"Werkwijze"










