Installation Manual

Installation, Operation and Maintenance Manual IO-70105 Rev 1, 1/2014
330 CIRCUIT BREAKER & WIRE SIZE
Overcurrent Protection:........... 50kA per mode units (“05”) = 20A Recommended
................................................. 80kA per mode units (“08”) = 30A Recommended
Connection Wire
: ..................... Phase/Neutral/Ground;
................................................. 50kA per mode units (“05”) = 18” of #12 AWG Included
................................................. 80kA per mode units (“08”) = 18” of #10 AWG Included
Summary Alarm Contacts
........ 18” of #18 AWG Included; 125VAC, 5A max
Normally Open .......... (NO) = Yellow
Normally Closed ......... (NC) = Blue
Common ................... (COM) = Orange
(With AC Applied)
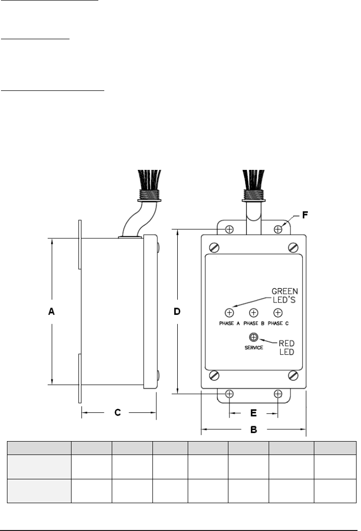
330 DIMENSIONAL INFORMATION
Unit A B C D E F Weight
50kA Mode
100kA Phase
6.00
[152.4]
4.00
[101.6]
3.23
[81.9]
6.75
[171.5]
2.00
[50.8]
0.31 Dia
[8.0]
10 lbs
[4.5kg]
80kA Mode
160kA Phase
8.25
[209.6]
6.95
[176.7]
3.78
[96.0]
8.75
[222.3]
4.00
[101.6]
0.31 Dia
[8.0]
14 lbs
[6.3kg]
5








