Satellite Radio User Manual
Table Of Contents
- Contents
- Housings
- Applications
- Interface/display
- Electrical connections
- Input signals
- Output signals
- Output signals continued
- Environmental specifications
- Power supply
- Hazardous area classifications
- Model 3100 accessory
- Model 3500/3700 liquid flow performance
- Model 3500/3700 density performance (liquid only)
- Model 3500/3700 gas flow performance
- Weight
- Dimensions
- Ordering information

Micro Motion
®
Series 3000 Transmitters and Discrete Controllers 15
Dimensions continued
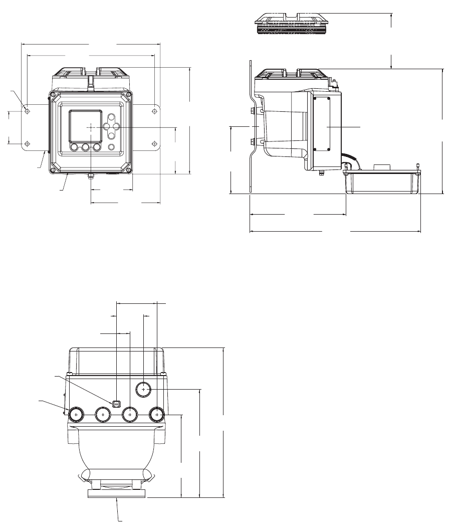
Field-mount Model 3350/3700
Dimensions in
inches
(mm)
12
(305)
11
(279)
4× ø 5/16
(9)
4
(102)
2 13/16
(71)
Display/cover can be
rotated 90° or 180°
11 5/16
(288)
3 5/8
(92)
6
(152)
6 1/8
(156)
5 1/16″ (129 mm)
Minimum clearance for removal
of circuit boards
8 11/16
(221)
15 1/2
(394)
2× 2 13/16
(71)
1 7/8
(48)
2× 15/16
(24)
Case ground
5× 3/4–14 NPT
or M20 × 1.5
female conduit opening
Mounting bracket can
be rotated 90°
10 3/8
(264)
7 1/2
(191)
5 3/4
(147)
9 3/16
(234)
4× M8 × 16 bolts are included
for attaching the mounting bracket to
the Model 3350 or 3700 transmitter
Approvals tag
Mounting surface
Conduit openings view










