Installation manual

E3 IN REV. A
6
- ORANGE :STARTER INTERRUPT O/P RELAY REQUIRED
- YELLOW / IGNITION INPUT (+)
- GREEN / (-) DOOR TRIGGER INPUT
- BLUE / (-) INSTANT TRIGGER INPUT ( HOOD, TRUNK)
- VIOLET / (+) DOOR TRIGGER INPUT
- WHITE / DOME LIGHT (OR CH#4 O/P) RELAY REQUIRED
- BROWN/ WHITE / (-) HORN OUTPUT.
Gray wire – (-) 200mA Channel 3 (Trunk) Output –
This will become a 1 second pulse ground by activate (button 3)
on transmitter for two seconds, the current
capacity of this wire is 200 mA. This feature allows you to remote control trunk release or other electric device.
(Realay may be required).
Orange wire – (-) 200mA Grounded Output When Armed –
This wire will become grounded when the alarm is armed. The current capacity of this wire is 200mA. This output
can control starter disable, when an intrusion is detected and the system is triggered. The vehicles prevent from
any unauthorized starting.
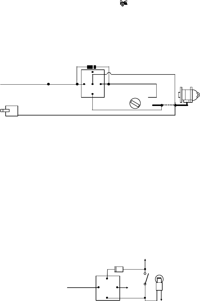
87
87a
85
30
86
IN4003 Diode
H2/15: Orange wire
from control module
“Start”
“On”
Purple wire
X
Cut
Yello wire
White wire
“Acc”
“Off”
Starter
H1/1 VIOLET wire (Starter output)
form Heavy Gauge wire harness
Red wire to
Ignition Switch
Yellow wire - 12 volt with the ignition ON +
Connect this wire to a 12 Volt source when the ignition of the vehicle is in the ON position.
Green wire – Negative Door Switch Sensing Input (Zone 3) –
This wire is the ground trigger input wire for negative door pin switch. This wire is connection for "grounding" type
factory door pins locate the "common wire" that connects the door pin switches. Make the connection of the
GREEN Wire here.
Blue wire – Ground Instant Trigger Input (Zone 2) –
This wire is the ground trigger input wire for hood and or trunk pin switches.
Violet wire – Positive Door Switch Sensing Input (Zone 3)–
This wire is the positive trigger input wire for positive door pin switch. This wire is connection for "positive" type
factory door pins(typical FORD MOTOR). Locate the "common wire" for all door pins and make the connection of
the VIOLET Wire here.
White wire – (-) 200mA Dome Light Control Output – Programmable channel 4
This wire becomes grounded when the
dome light controls circuit active. The
current capacity of this wire is 200mA.
This wire can control the operation of
the interior lights. An optional 10 Amps
relay can be used to this system for
interior lights operation.
87a
86
87
30
85
Fuse
White Wire
+12V
Door
Switch
Courtesy
Light
a). Upon disarming, the interior lights will remain on for 30 seconds.
b). If the alarm is triggered, the interior light will flash for the same duration as the siren.










