Installation manual

24
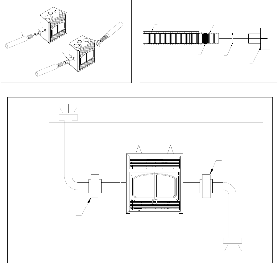
Since the forced air kit requires electricity, make sure that the connections to the fan have
been made according to the local codes and comply with their requirements (see instruction
provided with the kit).
Figure 16 Figure 17
ROOM
BASEMENT
FAN
FAN
Figure 18
INSULATED
FLEX PIPE
ADAPTER
INSULATION
5"Ø FLEX
ALUMINUM
TAPE
COLLAR
FAN










