Technical data

12
Envoy Installation, Commissioning & Operating Manual
WARNING:- Not all makes of detectors and call points etc are suitable for this panel, see page 24 for
recommended equipment
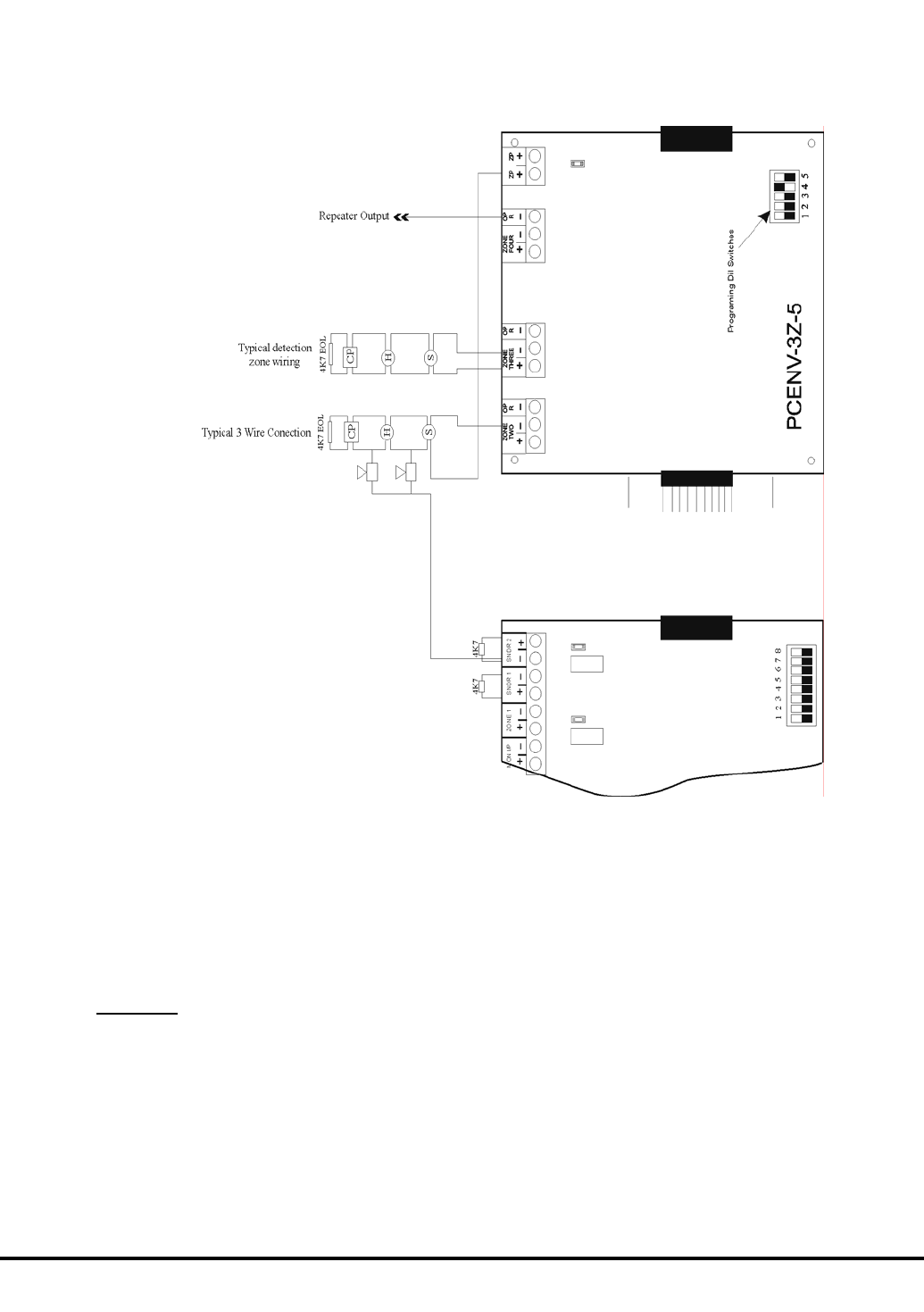
Drawing No. S1599, showing general wiring schematic for PCENV-3Z-5, including 3 wire connection
A typical 3 wire circuit is shown on Dwg No. S1599, connected into zone 2. This method of wiring does
not meet current standards for new systems, but may be suitable for upgrading certain existing
installations.
Three wire circuits may contain high current and / or unpolarised sounders or other unsuitable
equipment, so care should be taken to upgrade equipment when connecting in these circuits.
CAUTION
: Ensure all solenoids, relays and sounders fitted to the circuits are polarised and
suppressed with back EMF diodes. It is recommended that old heavy current sounders are
changed to light current. Maximum sounder load on the total 3 wire system is 1 Amp.
The following modifications must be made for the circuit to function correctly:
• The detector zone must be configured for short = fire and no head removal monitoring by switch-
ing SW4 on DIL switches. Refer to Engineering Options.
• The sounder circuit is not monitored, therefore a 4K7 resistor must be fitted to the sounder circuit
terminals in the panel.










