Installation Instructions
Table Of Contents

6
2. Specifications
Wall plate
Mounting bracket adjustment range
Item Specification Remark Reference Page
Mounting bracket mass Approx. 6.3 kg
(13.89 lb.)
Wall plate (2.2 kg [4.85 lb.])
Covers and cap (0.47 kg [1.04 lb.])
Forward/backward slide
adjustment range
0 to 300 mm
(11.81 in.)
Refer to the figure
below
Vertical slide adjustment range ± 4
°
Minimum: 28 mm (1.10 in.)
Maximum: 42.5 mm (1.67 in.)
s p. 17
Vertical tilt adjustment range ± 5
°
Fine adjustments possible with adjustment dial
s p. 15
Horizontal rotation adjustment
range
± 5
°
Fine adjustments possible with adjustment dial
s p. 16
Horizontal roll adjustment range ± 3
°
Fine adjustments possible with adjustment dial
s p. 16
Horizontal slide adjustment range ± 45 mm
(1.77 in.)
Refer to the figure
below
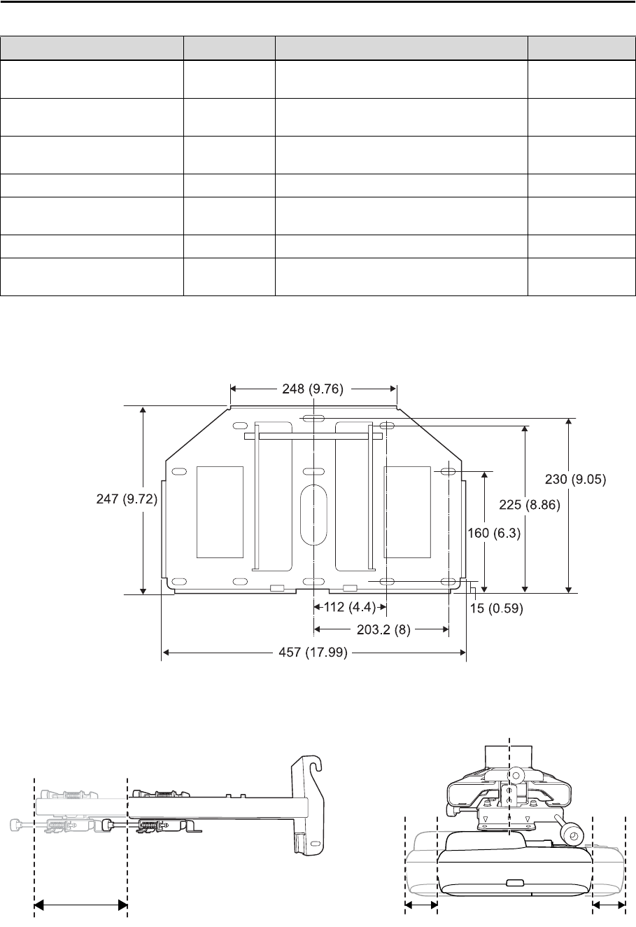
[Unit: mm (in.)]
Forward/backward slide adjustment range:
0 to 300 mm (11.81 in.)
Horizontal slide adjustment range:
± 45 mm (1.77 in.)