Dimensions Guide

Page 6 of 9
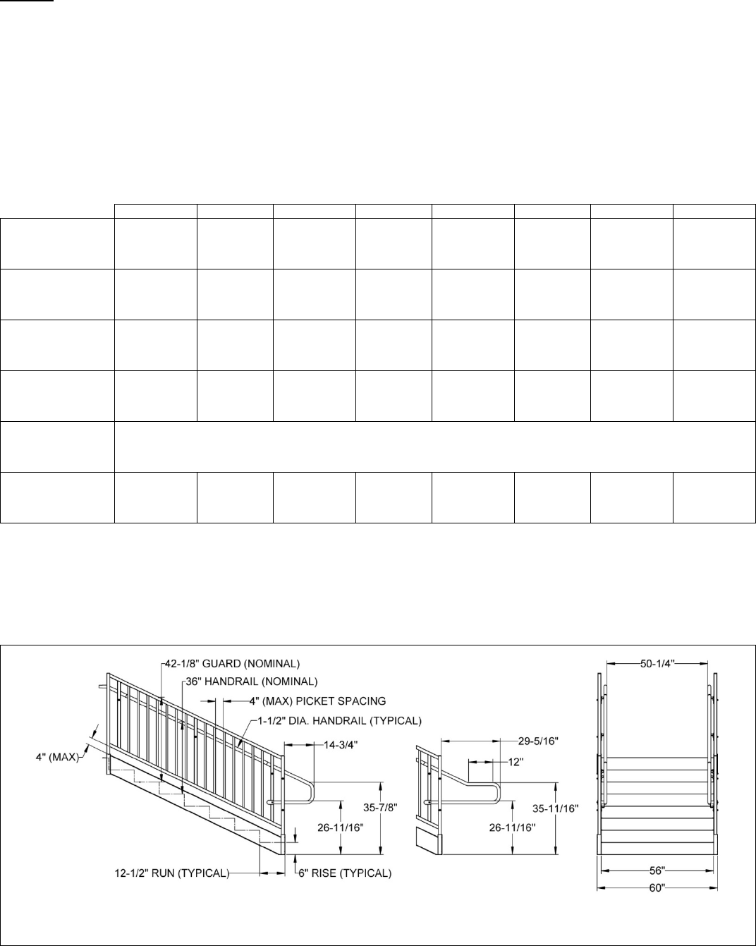
STEPS
Made with aircraft grade aluminum.
Slip resistant, knurled Gecko Grip® walking surface.
Standard 6” closed risers from 18” - 60”.
1” safety tape standard; 2” safety tape available.
Standard useable width 56”.
Standard overall width 60”.
Typical tread depth 12.5”.
Aluminum feet included for leveling on uneven surfaces.
Designed for a uniform live load of 100 lbs. per square foot (psf) min. and a concentrated vertical load of 300 lbs. over
an area of 4 square inches.
Step Height
18”
24”
30”
36”
42”
48”
54”
60”
Outside Riser
Dimensions
(L x W x H)
27.53” x 60” x
19.52
40.18” x 60” x
25.44
52.82” x 60” x
31.78
65.47” x 60” x
37.55
78.10” x 60” x
43.63
90.69” x 60” x
49.93
103.39x 60” x
55.97
116.03” x 60” x
62.05
Riser Weight (lbs.) 43.84 60.81 77.91 94.97 112.07 129.16 146.22 163.33
Guard Pair Weight (lbs.) 36.74 43.85 49.98 58.35 67.68 73.76 82.11 94.34 (1)
Handrail Pair Weight
(lbs.) (2)
2.74 2.74 2.74 5.78 6.30 (3) 6.30 (3) 8.35 (3) 8.35 (3)
Foot Pair Weight (lbs.) 3.04
Step w/ Guard &
Handrail (Pairs) Weight
(lbs.) (4)
83.32 107.40 130.63 159.10 186.05 209.22 236.68 266.02
Note (1) – Includes 1.5” square step guard reinforcement posts.
Note (2)Before being trimmed to fit.
Note (3) – Includes mid-handrail brackets and attachment hardware.
Note (4)Not including lower handrail return loops or upper handrail transitions.
TABLE 5
STANDARD LOOP SHOWN
EXTENDED LOOP SHOWN
FRONT VIEW
FIGURE 1