Corperation Installation, Operation and Maintenance Manual Split System Air Conditioner

4
CONNECT REFRIGERANT PIPING
The following guidelines should be followed when installing
refrigerant piping. Comply with all local, state, and federal
codes and/or regulations pertaining to this type of
equipment and its installation.
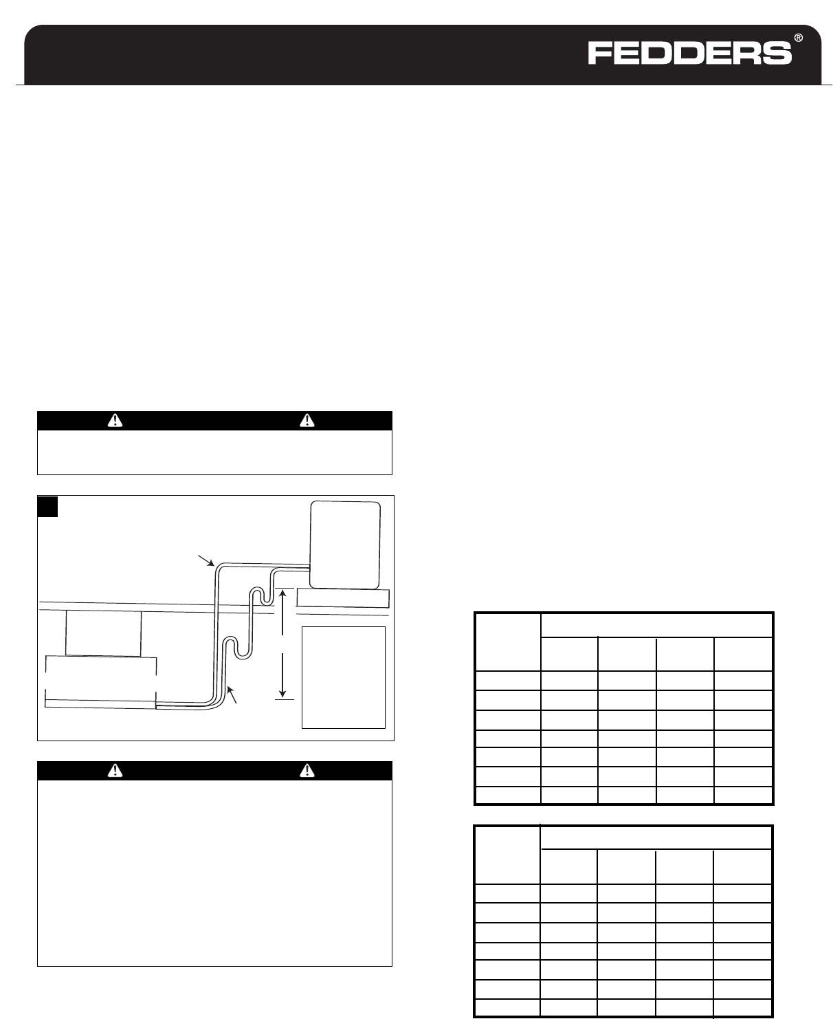
1. Run the tubing by the most direct route and support
every few feet. Do not run the lines underground unless
they are in a chase. Leave enough material between
s
tructure and unit to absorb vibration.
2. Insulate the vapor line to prevent sweating and line loss.
In underground chases, the vapor line should be
i
nsulated to provide vibration isolation between the
vapor and liquid line. A minimum of 3/8” insulation is
recommended in conditioned space and 1/2” to 3/4” in
unconditioned space. Ensure that tubing insulation is
pliable and completely surrounds vapor tube.
3. In general, the piping should be sloped toward the
outdoor unit to prevent oil trapping. Where vertical
risers occur, a suction line trap should be located at the
base of the riser to assure proper oil return.
Precautions
R
efer to the chart below for the minimum recommended tube
outside diameter sizes on liquid and suction lines. Ensure that
vapor and liquid tube diameters are appropriate for unit
capacity. Run refrigerant tubes as directly as possible by
avoiding unnecessary turns and bends.
Undersized line sets will increase the refrigerant pressure drop
between the indoor evaporator and outdoor unit, resulting in
a decrease in system capacity. Oversizing the line sets may result
i
n excessive refrigerant charge, thereby making the system
more susceptible to liquid migration.
When passing refrigerant tubes through the wall, seal opening
w
ith RTV or other pliable silicon based caulk.
Avoid direct tubing contact with water pipes, duct work, floor
joists, wall studs, floors, and walls.
Do not suspend refrigerant tubing from joists and studs with a
rigid wire or strap which comes in direct contact with tubing.
When necessary, use hanger straps which are 1 in. wide and
conform to shape of tubing insulation.
Isolate hanger straps from insulation by using metal sleeves
bent to conform to shape of insulation.
Condensing units are available with pre-charged, sweat-type
copper connecting fittings.
Units are factory charged for 15’ of line set tubing.
• Adjust charge 0.65 oz per foot of variation from chart for
1/4" and 5/8" line set.
• Adjust charge 0.66 oz per foot of variation from chart for
3/8” and 3/4” line set.
• Adjust charge 0.67 oz per foot of variation from chart for
3/8" and 7/8" line set.
• Adjust charge 0.72 oz per foot of variation from chart for
1/2" and 1 1/8" line set.
WARNING
IF THE INSTALLER IS MAKING UP HIS OWN LINE SETS, HE
MUST MAKE SURE THE TUBING IS CLEAN OF ANY
IMPURITIES OR MOISTURE. USE ONLY CLEAN AIR
CONDITIONING AND REFRIGERATION GRADE SEAMLESS
COPPER TUBING. PLUMBING GRADE COPPER IS
INADEQUATE. TO ENSURE A CLEAN SYSTEM FREE OF ANY
CONTAMINANTS, PURGING WITH DRY NITROGEN AND A
DEEP VACUUM IS NECESSARY ON ALL SWEAT-TYPE
MODELS AND ON THE UNCHARGED POR
TIONS OF ALL
MODELS NOT INCORPORATING PRECHARGED LINES. IT IS
DESIRABLE TO PULL A V
ACUUM TO 1,000 MICRONS (29.96”
HG) TO ENSURE TROUBLE FREE OPERATION.
3”
MIN.
10’
MA
X
20’
OUTDOOR
SECTION
INDOOR
COIL
LIQUID
LINE
SUCTION
LINE
LIQUID LINE SIZES
CONDENSER
MODEL
NUMBER
C18ABD1 3/8” 3/8” 3/8” 3/8”
C24ABD1 3/8”
3/8”
3/8”
3/8”
C30ABD1 3/8”
3/8”
3/8”
3/8”
C36ACD1 3/8” 3/8” 3/8” 3/8”
C42ACD1 3/8”
3/8”
3/8”
3/8”
C48ACD1 3/8” 3/8” 3/8” 3/8”
C60ACD1 1/2” 1/2” 1/2” 1/2”
LINE SET LENGTH AND SIZE
15 FT
LINE SET
25 FT
LINE SET
50 FT
LINE SET
75 FT*
LINE SET
SUCTION LINE SIZES
CONDENSER
MODEL
NUMBER
C18ABD1 3/4”
3/4”
3/4”
3/4”
C24ABD1 3/4” 3/4” 3/4” 3/4”
C30ABD1 7/8”
7/8”
7/8”
7/8”
C36ACD1 7/8” 7/8” 7/8” 7/8”
C42ACD1 7/8” 7/8” 7/8” 1 1/8”
C48ACD1 7/8”
7/8”
7/8”
1 1/8”
C60ACD1 1 1/8” 1 1/8” 1 1/8” 1 1/8”
15 FT
LINE SET
25 FT
LINE SET
50 FT
LINE SET
75 FT*
LINE SET
WARNING
REFRIGERANT LINE LENGTH MUST NOT EXCEED 75’ ON
HORIZONTAL RUNS AND 40’ ON VERTICAL RISERS.
LINE SET LENGTH AND SIZE
* DO NOT EXCEED 75 FT MAX LINE SET LENGTH
Can only be
20’ vertical
separation
without
additional
accessories.
117








