Refrigerator User Manual

Monogram.
™
ZICS360NM – GE Monogram 36" Built-In Stainless Steel Bottom Freezer
Refrigerator with Automatic Icemaker
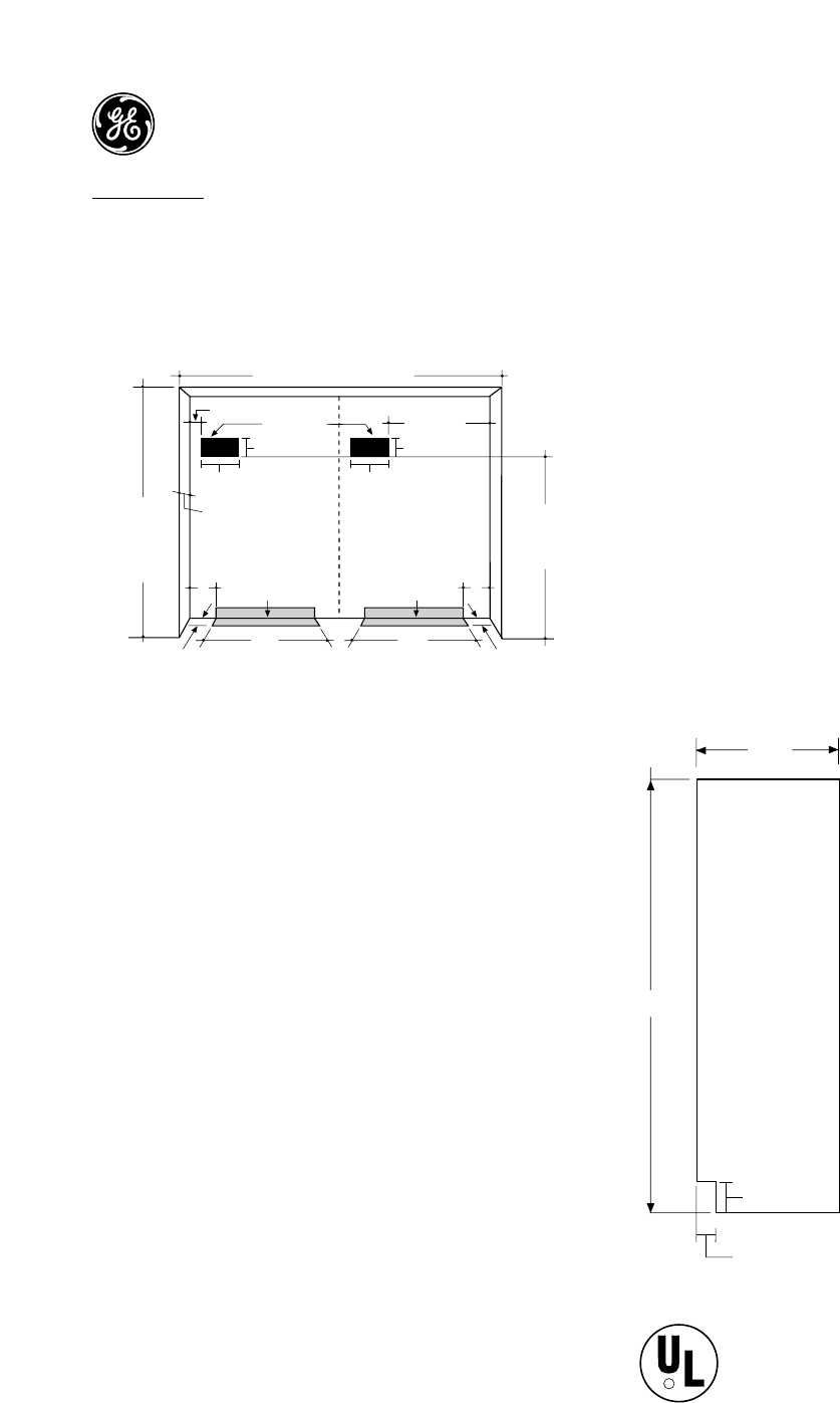
ZUGSS2 Unified Grille Panel Kit
• For side by side installation of two stainless steel wrapped
bottom-freezer refrigerators. This kit provides a unified stainless
steel grille panel to span the width of two units.
• If you are installing two refrigerators, side by side, the
installation space must be 71-1/2" wide.
Note: Additional cutout width may be required when side panels are
used. Add side panel thickness to the finished cutout to calculate
rough-in width.
• The water and electrical locations for each product must be located
as shown.
• A separate 115V, 60Hz., 15 or 20 amp power supply is recommended
for each product.
2-5/16"
74-1/2" From
Floor to Bottom
of Electrical
84-1/2" max
83-1/2" min
Finished
Opening
71-1/2" Finished Width
Electrical
5"
3-1/2"
24" Cutout
Depth
Water Supply
Wall View
24-3/16"
26"
7"
10"
7"
10"
Water Supply
26"
5"
3-1/2"
SIDE PANELS
Side panels must be used whenever the sides of the refrigerator
will be exposed. The 1/4" side panels will slip into the side case
trim. Order the side panels from the cabinet manufacturer.
*84"
2-9/16"
24"
*3" to 4"
* Depending on installation height.
Specification Revised 8/02
For answers to your Monogram,
®
GE Profile
™
or
GE appliance questions, visit our website at
GEAppliances.com or call
GE Answer Center
®
service, 800.626.2000.
R
Listed by
Underwriters
Laboratories



