Installation Guide
Table Of Contents

6
Installation Instructions
INSTALLATION—GAS CONNECTIONS
1
PROVIDE ADEQUATE
GAS SUPPLY
This cooktop is designed to operate on natural
gas at 4″ of water column manifold pressure and
7″ of water column (W.C.) supply pressure. It is
shipped from the factory set for natural gas. The
convertible pressure regulator supplied with the
unit must be connected in series with the manifold
of the cooktop and must remain in series with the
supply line regardless of whether natural or L.P.
gas is being used. FOR PROPER OPERATION, THE
MAXIMUM INLET PRESSURE TO THE REGULATOR
MUST BE NO MORE THAN 14″ OF WATER COLUMN
PRESSURE. For checking the regulator, the inlet
pressure must be at least 1″ W.C.. (or 3.4 KPA)
greater than the regulator output setting. If
the regulator is set for 4″ W.C. of water column
pressure, the inlet pressure must be at least 5″ W.C.
If the regulator is set for 10″ W.C., the inlet pressure
must be at least 11″ W.C.. The gas supply line to
the cooktop should be 1/2″ or 3/4″ pipe.
2
INSTALL REGULATOR
NEVER REUSE OLD CONNECTORS WHEN
INSTALLING THIS COOKTOP.
WARNING: Never reuse old flexible
connectors. The use of old flexible connectors
can cause gas leaks and personal injury. Always
use new flexible connectors when installing a gas
appliance.
To reduce the likelihood of gas leaks, apply teflon
tape or a thread compound approved for use with
LP or Natural gases to all threaded connections.
Screw a section of pipe onto
the inlet end of the pressure
regulator and install the
coupling.
3
INSTALL REGULATOR ONTO
BURNER BOX BOTTOM
Screw the regulator
onto the burner
box bottom pipe
connection. Make
sure the top of
the regulator is
facing towards the
cabinet front, easily
accessible through
the cabinet doors.
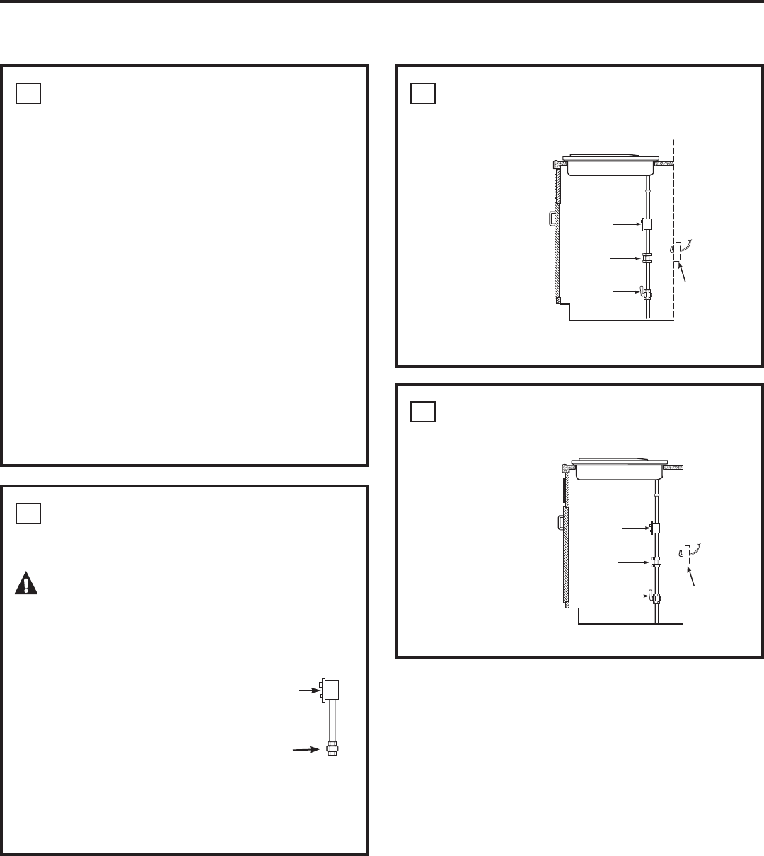
4
COMPLETE CONNECTION WITH A
COUPLING
Complete the
connection between
the regulator pipe
coupling and
the shut-off valve.
Pressure
Regulator
Pressure
Regulator
Shut-Off
Valve
Coupling
Electrical
Outlet 12″
Below
Countertop
Coupling
Pressure
Regulator
Shut-Off
Valve
Coupling
Electrical
Outlet 12″
Below
Countertop










