Industrial Systems CS300 Half Controlled Power Supply for Inverter DC-Link User`s Guide
Table Of Contents
- Table of contents
- Safety Symbol Legend / Légende des Signes de Sécurité
- Chapter 1 - Safety Precautions
- Chapter 2 - Component Identification and Specification
- 2.1 General Description
- 2.2 Power Supply
- 2.3 Description of Power Terminals
- 2.4 Description of Control Terminals
- 2.5 Protections
- 2.5.1 Internal Protection Components
- 2.5.2 Internal Fuses
- 2.5.3 External AC Mains Fuses
- 2.5.4 AC Mains Choke
- 2.6 Converter Size Selection
- 2.6.1 Output Rated Currents for the Two Functioning Classes
- 2.6.2 Drive DC Current (DC Link Circuit)
- Chapter 3 - Selection of the CS300 converter
- Chapter 4 - Control Description
- Chapter 5 - Converter Dimensions
- Chapter 6 - Converter Operation
- Chapter 7 - Replacement Parts
- Chapter 8 - Warranty Parts and Service

CS300
——————— Half controlled power supply for inverter DC-Link ————————
21
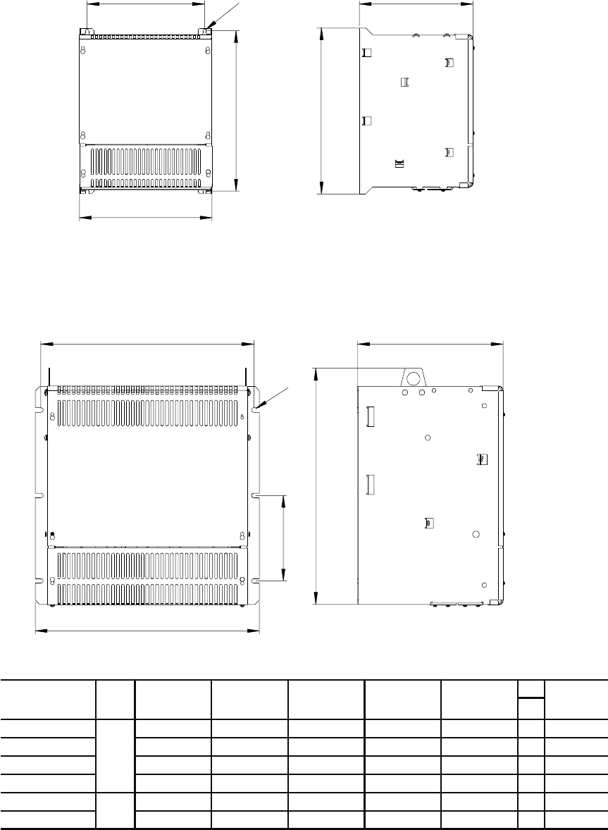
Chapter 5 - CONVERTER DIMENSIONS
F
C
D
Form 2
A
E
A
C
F
E
B
D
B
Form 1
ABCDE
F
Weight
inch [mm] inch [mm] inch [mm] inch [mm] inch [mm] Ø lbs [kg]
6KCS3185-480 12.22 [311] 15.25 [388] 10.61 [270] 14.73 [375] 10.70 [275] M6 36.6 [18]
6KCS3280-480 12.22 [311] 15.25 [388] 10.61 [270] 14.73 [375] 10.70 [275] M6 57.3 [26]
6KCS3420-480 12.22 [311] 15.25 [388] 10.61 [270] 14.73 [375] 10.70 [275] M6 66.1 [30]
6KCS3650-480 12.22 [311] 15.25 [388] 10.61 [270] 14.73 [375] 10.70 [275] M6 68.3 [31]
6KCS310H-480 20.63 [525] 21.77 [554] 13.48 [343] 7.86 [200] 19.65 [500] M6 138.8 [63]
6KCS315H-480 21.65 [551] 26.96 [686] 14.93 [380] 7.86 [200] 20.67 [526] M8 187.3 [85]
cs120
2
1
Converter Form










