Installation Instructions

FA-Plus
SEC
PRI
~~
+ +
--
39
A
A
_
_
+
+
D
D
Malla
Malla
V
in
V
in
V
out
V
out
CN4
CN4
A
_
+
D
Malla
V
in
V
out
CN2
A
_
+
D
Malla
V
in
V
out
CN4
D4L-PLUS
D4L-PLUS
IN
D1 D2
CTin
JP1
OUT
IN
D1 D2
CTin
JP1
OUT
Platea PlusPlatea Plus
Platea UnoPlatea Plus
SW1
COAX
TP
JP1
JP2
CV2CV1+12 D
Malla
Vin-AinAout Vin+ Vout-Vout++
CN1
--
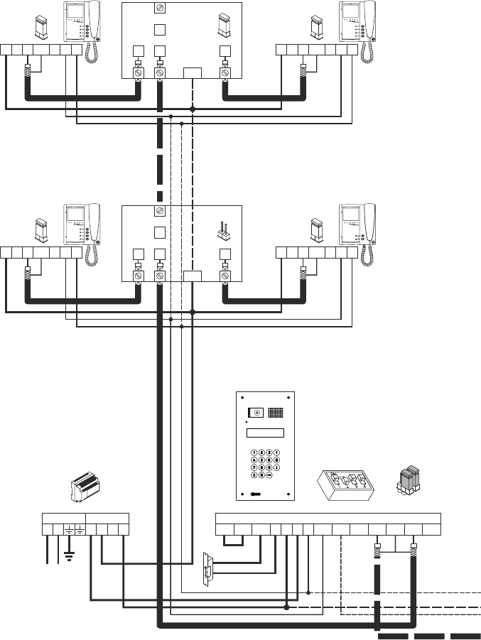
ideo installatie met coaxiaal
V kabel.
* Verwijder JP1 van alle videoverdelers waar de
doorvoer gebruikt wordt.
*Plaats de voeding zo dicht mogelijk
bij de eerste videoverdeler.
230 VAC
Hoofd deurpaneel
FA-Plus
SEC
PRI
~~
+ +
--
40
INSTALLATIESCHEMA
1,00mm² 2,50mm²
0,25mm² 0,25mm²
RG-59 RG-59
Aansluiting
50m. 150m.
A , A , A, D
in out
V , V , V , V
in+ out+ in out
+, –, CV+, CV–
BELANGRIJK:
Indien Uno monitoren en/of toestellen gebruikt worden, zet dan microswitch 4 van het
deurpaneel op ‘ON’. Indien er meerdere deurpanelen in het systeem opgenomen zijn, zet deze
switch dan enkel van één paneel op ‘ON’ en bij voorkeur diegene die het dichtsbij de hoofdstreng
geplaatst is. Wanneer een digitale repeater RD-Plus/Uno in de installatie opgenomen is, dan hoeft op
geen enkel paneel deze switch ingesteld te worden.
CV2CV1+12 D
Malla
Vin-AinAout Vin+ Vout-Vout++
CN1
--
SW1
COAX
TP
JP1
JP2
Als het systeem slechts één deurpaneel heeft, laat dan de bedrading van het tweede paneel
achterwege. Houd ook alleen de instelling van het hoofddeurpaneel aan!
230 VAC
Neven deurpaneel
Indien er sprake is van langere afstanden,
raadpleeg dan uw leverancier over de toe te
passen bekabeling!










