Specification

www.goodmanmfg.com SS-GMVM97
SS-GMVM97 www.goodmanmfg.com
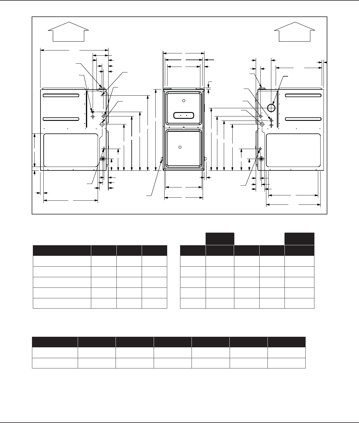
GMVM97 Dimensions
Minimum Clearances to Combustible Materials
Position Sides Rear Front Bottom Flue Top
C
C
Air
Discharge
Air
Return
Model W D H A B C D E
GMVM970603BNA
GMVM970803BNA
5
9¼
19⅝
34½
¾
19½
⅞
¾
B
C
23
2⅜
1⅞
2½
2
6½
5
9¼
19⅝
23
24⅞
31⅞
A
21⅛
2⅝
14
23
1
½
1⅜
¾
28¾
2⅜
1⅞
2½
2
2¾
6½
1⅞
26½
23½
Folded Flanges
22
Unfolded Flanges
D
Unfolded Flanges
E
Folded Flanges
Air
Discharge
Air
Discharge
LEFT SIDE VIEW
FRONT VIEW
RIGHT SIDE VIEW
Condensate Drain
Trap Exterior
Connecon
(Right or Le Side)
¾ PVC
Vent/ Flue Pipe
2" PVC
Alternate
Vent/ Flue
Locaon
Right-Side
Drain Trap
Exterior Holes
High-Voltage
Electrical Outlet
Alternate
Gas Supply
Low-Voltage
Electrical Outlet
Standard
Gas Supply
Locaon
Center Dimple
For Alternate
Air Intake Pipe
3" OD Hole
Air Intake
2" Pipe
Le-Side
Drain Trap
Exterior Holes
High-Voltage
Electrical Outlet
Low-voltage
Electrical Outlet










