Installation Instructions

INSTALLATION INSTRUCTIONS
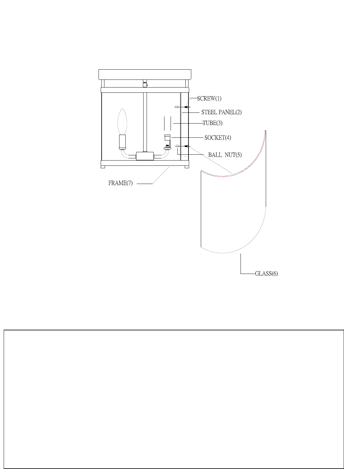
1.Carefully remove the fixture out of the carton, and check that all parts are included referring to the above
illustration. Make sure not to misplace any parts that are needed for the installation;
2.Install the glass panel(6)onto frame(7) ,then install the steel panel(2)onto screw(1), and secure them with ball
nut(5)on;
3.Install the tube(3) onto socket(4);
4.The fixture is assembled!