User Manual

Page 30 Crathco
®
5000 Series Manual
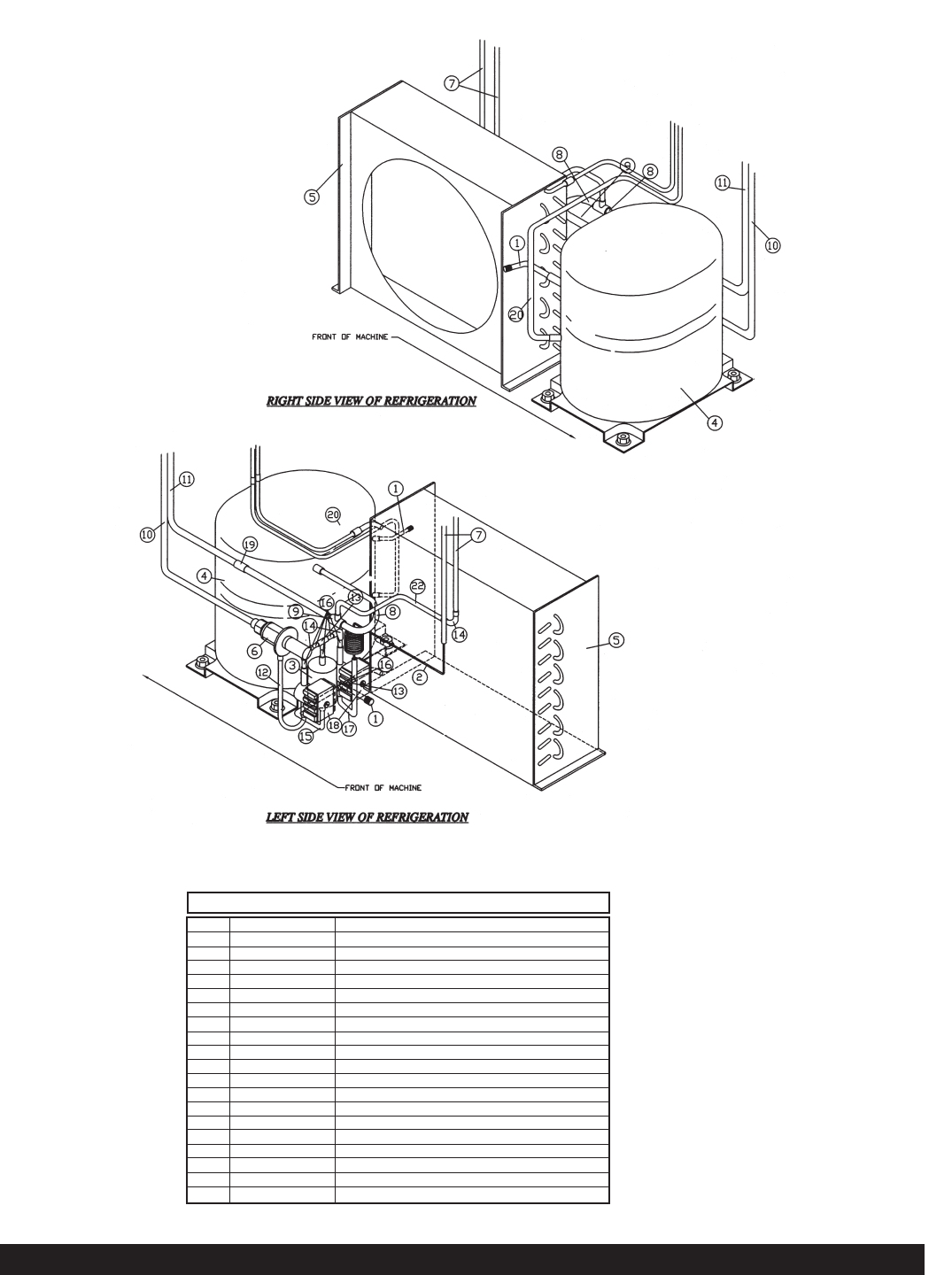
5311 Base Assembly Refrigeration
1
2
3
4
5
6
7
8
9
10
11
12
13
14
15
16
17
18
19
20
W0650501
W0200314
W0650112
W0200123
W0200256
W0650104
W0201120
W0201331
W0620109
W0201114
W0201113
W0201323
W0620102
W0620110
W0201324
W0201325
W0201326
W1650002
W0620103
W0201039
Access Valve
Capillary Tube, .042 x 12 Ft.
Filter Drier
Compressor
Condenser
Automatic Expansion Valve
Hopper Coolant Lines
Suction Line
3/8" x 3/8" x 1/4" Tee
Evaporator Line
Suction Line
Exp. Valve Solenoid Coolant Line
1/4" x 1/4" x 1/4" Tee
1/4" Copper Elbow
Filter/Condenser Coolant Line
Coolant Line
Solenoid/Cap Tube Line
Solenoid Valves
3/8" Straight Couple
Compressor/Condenser Hot Gas Line
Item Part Number Description
5311-105-021-4-29-00










