- GRIND MASTER Beverage Freezers Operation and Instruction Manual 5311, 5511

Crathco
®
5311 & 5511 Manual Page 28
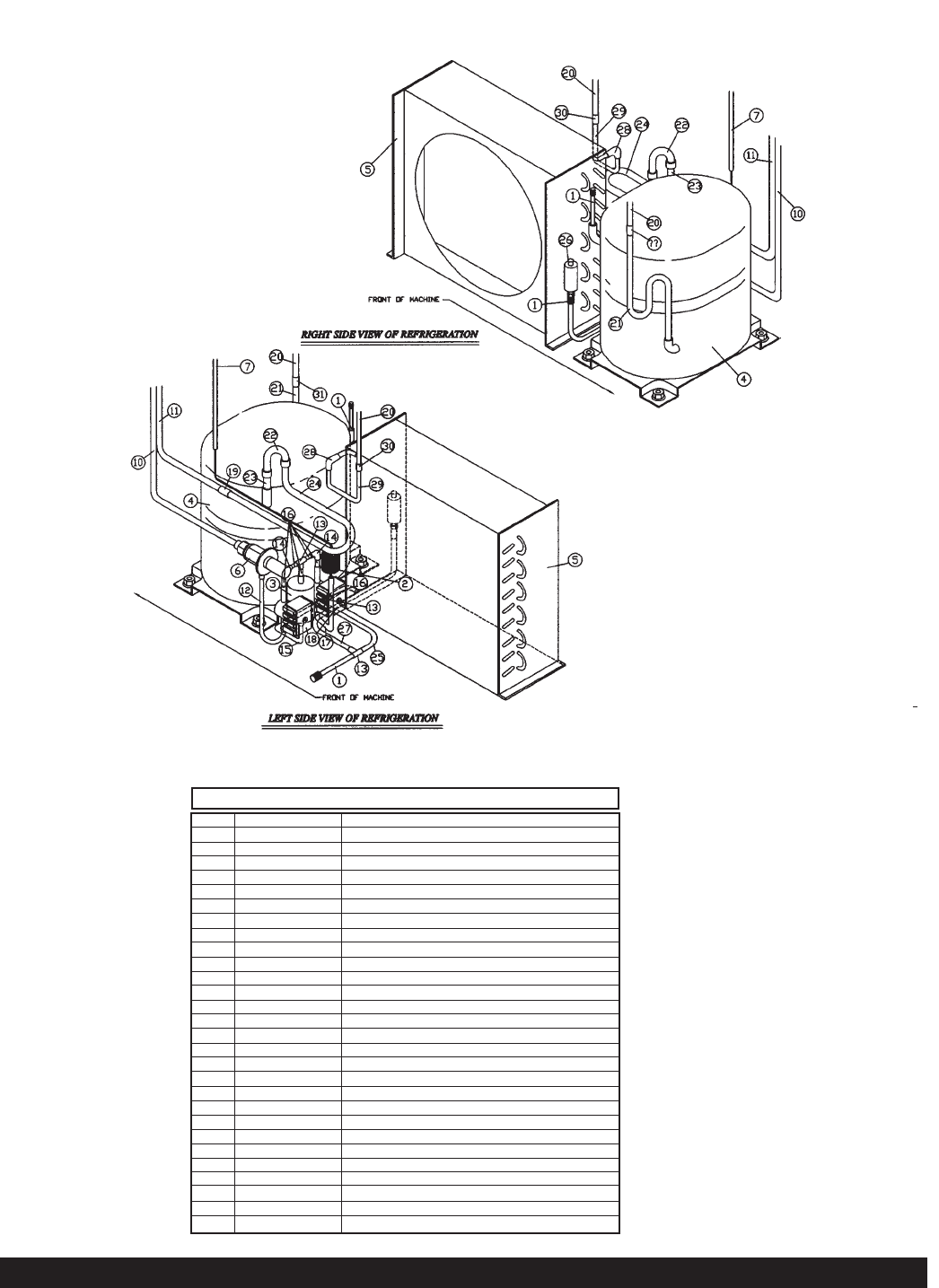
5511 Base Assembly Refrigeration
1
2
3
4
5
6
7
10
11
12
13
14
15
16
17
18
19
20
21
22
23
24
25
26
27
28
29
30
31
W0650501
W0200301
W0650112
W0200133
W0200256
W0650107
W0201120
W0201114
W0201113
W0201323
W0620102
W0620110
W0201324
W0201325
W0201326
W1650002
W0620125
W0201112
W0201371
W0620123
W0201372
W0201373
W0201155
W0650428
W0201220
W0201153
W0201151
W0620112
W0201152
Access Valve
Capillary Tube
Filter Drier
Compressor
Condenser
Automatic Expansion Valve
Hopper Coolant Lines
Evaporator Line
Suction Line
Exp. Valve/Solenoid Liquid Line
1/4" x 1/4" x 1/4" Tee
1/4" Copper Elbow
Filter/Condenser Coolant Line
Condenser To Tee Liquid Line
Solenoid/Cap Tube Liquid Line
Solenoid Valves
1/2" Straight Coupling
Barrel Warmer
Compress./Condenser Hot Gas Line
1/2" 180 Deg. Copper Fitting
Suction Line (Short)
Suction Line (Bent)
Liquid Line
High Pressure Cutout Switch
Liquid Line
1/4 OD x 3/8 ID 90Þ Bell Reducer
3/8" Dia Condenser Connection
3/8" Coupling
5/16 ID x 3/8 ID Straight Coupling
Item Part Number Description
5511-0108-021-3-20-00










