Dust Collector User Manual

BdYZa<%))%$<%))&$<%))(B[\H^cXZ-$&%
"',"
,-
&
¿'
(+
.
&
¿'
<gdjcY
LVaaHijYLVaaHijY LVaaHijY
'm&'7dVgY
'm+7dVgY
2AV\7daih!8djciZghjc`
2AV\7daih
Wood Framed Walls, G0443
(
&
¿'
(
&
¿'
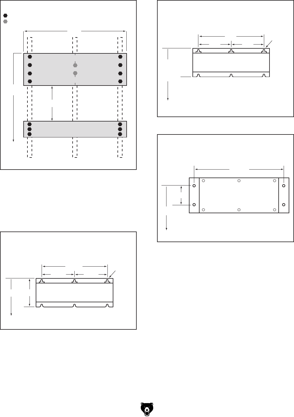
Figure 11.<%))(lVaabdjci^c\WdVgYaVndji#
2. 8den i]Z bdjci^c\ ]daZ aVndjieViiZgc[gdb
i]Z bdidg ]djh^c\ hZZ Figures 12–14 id
ndjg lVaa bdjci^c\ WdVgY! bV`^c\ hjgZ i]Z
Top Row Mounting Hole Height ^h XdggZXi
[dgndjgYjhiXdaaZXidg#
Use these measurements for hole
placement when mounting the
Model G0441.
H^c\aZ"7VggZaIdeGdl
Bdjci^c\=daZ=Z^\]i2-%
9djWaZ"7VggZaIdeGdl
Bdjci^c\=daZ=Z^\]i2.*
'%
&%&%
G0441 Motor Housing
,
(
¿)
-%
dg
.*
*
¿-
;addg
¢%#**
Figure 13. <%))&lVaabdjci^c\aVndji#
Use these measurements for hole
placement when mounting the
Model G0440.
IdeGdlBdjci^c\=daZ=Z^\]i2-%
'%
&
¿'
&%
&
¿)
G0440 Motor Housing
,
(
¿)
-%
;addg
¢%#**
&%
&
¿)
Figure 12. <%))%lVaabdjci^c\aVndji#
Use these measurements for hole
placement when mounting the
Model G0443.
,+
(
¿)
)
*
¿&+
;addg
''
&
¿&+
G0443
Wall Mount Bracket
IdeGdlBdjci^c\=daZ=Z^\]i2,+
(
¿)
Figure 14. <%))(lVaabdjci^c\aVndji#










