Dust Collector User Manual

"+"
BdYZa<%))%$<%))&$<%))(B[\H^cXZ-$&%
.(
(
¿-
+,
,*
&
¿)
'+
,
¿-
('
,
¿-
')
&
¿'
&*
(
¿)
)+
(
¿)
¢,
(,
(
¿)
*.
&
¿&+
('
,
¿-
¢,
('
,
¿-
¢,
&,
&
¿)
I]ZV^gÄdliZhiegdWZ^hadXViZY&#*mYjXiY^VbZiZgjehigZVb[gdbi]Z
V^g^caZi#IZhie^eZaZc\i]^hVb^c^bjbd[&%mYjXiY^VbZiZg#
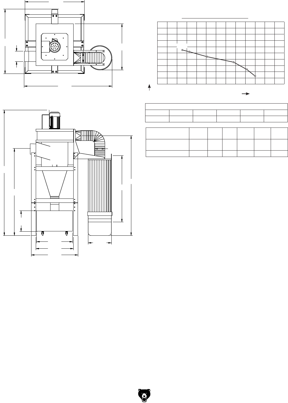
2 HP GRIZZLY DUST COLLECTOR PERFORMANCE RESULTS
Max CFM Max SP HP Volts Inlet Impeller
&(*) &%#) '=E ''%K , &)"&$'
GZhig^XidgEaViZ
^cX]
9^V#, 9^V#
+
9^V#
*
9^V#) 9^V#( 9^V#'
HiVi^XEgZhhjgZ
>cX]$='D
'#* (#' *#& ,#- .#' &%#%
8;B &(*) &'++ &%,% -'. *-+ ((-
Performance Curve
'*%%
''*%
'%%%
&,*%
&*%%
&'*%
&%%%
,*%
*%%
'*%
%
0.0 1.0 2.0 3.0 4.0 5.0 6.0 7.0 8.0 9.0 10.0 11.0 12.0 13.0
1354
CFM
STATIC PRESSURE (Inch/H2O)
HeZX^ÃXVi^dch!l]^aZYZZbZYVXXjgViZ!VgZcdi\jVgVciZZY#'$'%%*#










