Impact Driver User Manual

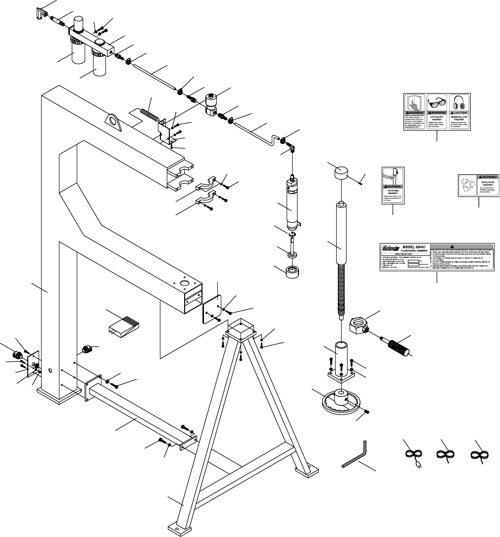
G0497 Parts Breakdown















































  













