User manual

Generac
®
Power Systems, Inc. 21
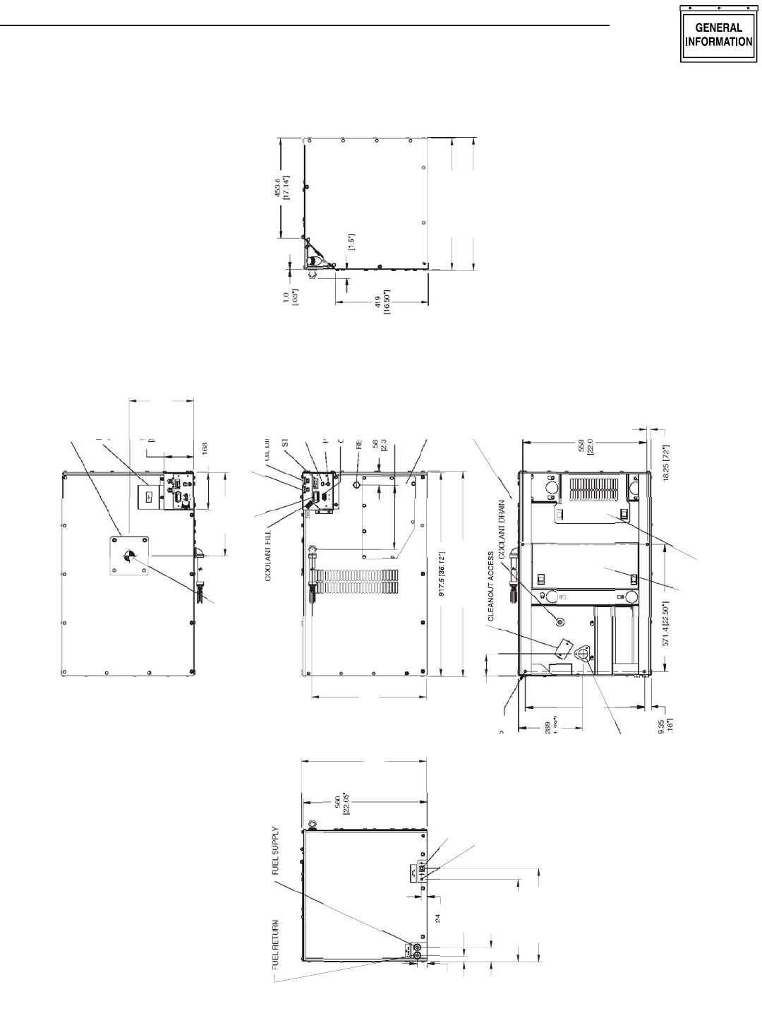
Figure 1.2 – Major Features and Dimensions
Section 1 – General Information
QUIETPACT™ 75D Recreational Vehicle Generator
Major Features and Dimensions — Drawing No. 0D2650-A
[
.94"
]
595.0
[
23.43"
]
604
[
23.78"
]
O
VER
SC
REW
S
929
[
36.57"
]
O
VER
SC
REW
S
OIL DIPSTICK
O
IL FIL
L
TO
P
/S
TART
S
WIT
CH
C
IR
CU
IT BREAKE
R
H
OU
R METE
R
FUSE
(
14 AMP
)
COOLANT FILL
ELE
C
TRI
C
AL A
CC
E
SS
LIFTIN
G
EY
E
ACC
E
SS
CO
VE
R
MO
TE
CO
NNE
C
TI
O
N KN
OC
K
OUT
2
9
1.
5
[
11.48"
]
3
7
6
.
5
[
14.82"
]
]
567
[
22.32"
]
O
VER
SC
REW
S
5
1
6
.
5
[
20.33"
]
[
6.61"
]
3
7.
6
5.42"]
BATTERY
CO
NNE
C
TI
ON
POSITIVE
(
+
)
BATTERY
CO
NNE
C
TI
ON
NEGATIVE
(
-
)
2
6
[
1.02"
]
371
[
14.61"
]
421 [16.57"
]
63
[
2.48"
]
4
5
[1.77"
]
536
.
3
[
21.12"
]
3/8-16 UNC MOUNTING HOLES
[
4 PLCS
]
REAR
S
ERVI
C
E PANEL
FR
O
NT
S
ERVI
C
E D
OOR
RE HEAT
C
ENTER
O
F
G
RAVIT
Y
EXHA
US
T
OU
TLE
T
99
[
3.90"
]
[11.38"]
.5
0
"
]
F
R
ADIAT
O
R
C
A
P
ACC
E
SS
CO
VE
R
5
0"]
289.5
[
11.40"
]
A
C
P
O
WER HARNE
SS
[
1/2" LIQUID-TIGHT CONDUIT
]
2
[1.16"]
COO
S
PARK ARRE
S
T
OR
38










