User manual

Generac
®
Power Systems, Inc. 23
2.1.4 GENERATOR RESTRAINT
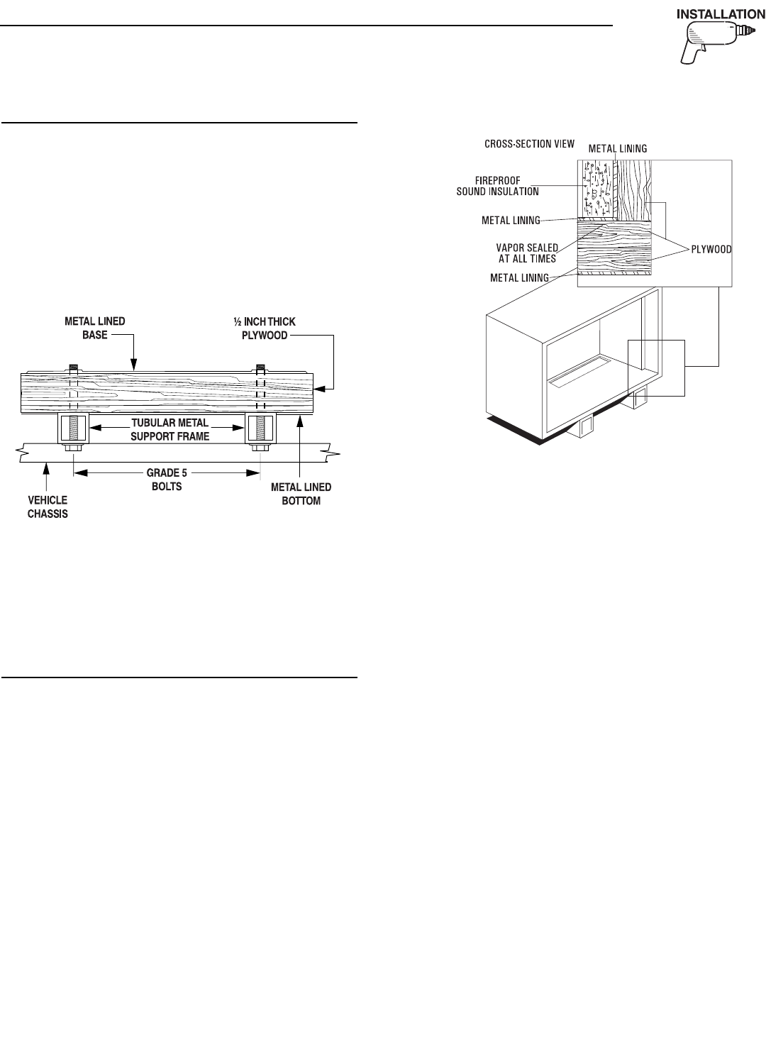
Use four 3/8"-16 hardened steel bolts (Grade 5) to fas-
ten the generator to the supporting frame or the sup-
port tubing. These bolts must pass through (a) the gen-
erator mounting base, (b) the compartment floor (if a
compartment is used), and (c) the supporting frame-
work (Figure 2.2). All bolts must be long enough so
that, when tight, they engage at least 3/8” of an inch [9.5
millimeters]. Refer to Section 2.2 for the location of the
generator mounting holes.
Figure 2.2 – Typical Generator Restraint
2.2 GENERATOR COMPARTMENTS
Whether the generator set is being installed inside a
compartment specifically manufactured to house a
generator or inside a compartment that the installer
constructs, the compartment must meet certain spec-
ifications, as outlined in the following sections:
2.2.1 COMPARTMENT CONSTRUCTION
• The generator compartment should be either con-
structed of, or lined with, 26-gauge galvanized
steel.
NOTE:
Aluminum is NOT an acceptable alternative
to galvanized steel due to aluminum’s low
melting point.
• If the compartment is lined with galvanized steel, it
may be constructed of any material. Generac rec-
ommends that the compartment be constructed of
1/2-inch thick plywood (not strandboard), with the
floor made of a double thickness of 1/2-inch ply-
wood, having the grain of the wood at cross section
for added strength (Figure 2.3).
Figure 2.3 – Typical Compartment Construction
• If constructing a compartment, line the exterior
(underside) of the compartment floor with 26-
gauge galvanized steel.
• All seams, splices, and joints of the compartment
walls (unless vapor-tight by design) should
be caulked to prevent poisonous, flammable, or
explosive vapors from entering the vehicle interior.
NOTE:
Caulking must be done so that the caulking mate-
rial will stay in place permanently. Pressing mate-
rials such as, putty tape, onto joints and seams is
NOT acceptable. A high-quality silicone rubber
base sealant is recommended.
• Holes and openings made in the compartment
walls to allow for the passage of electrical conduit,
conductors, hoses, cables, etc., into the vehicle liv-
ing area must be sealed vapor-tight with silicone
rubber base sealant.
• If a flexible metal conduit is used, it must be sealed
internally at the end, where it terminates inside the
compartment’s electrical junction box.
NOTE:
Flexible metal conduit, due to its unique con-
struction, is NOT vapor-tight along its entire
length.
◆
◆
Section 2 – Installation
QUIETPACT™ 75D Recreational Vehicle Generator










